EasyManua.ls Logo

Trane Foundation GBC240 - Field Installed Power Wiring; Standard Wiring; Optional TBUE Wiring (Through the Base Electrical Option)

Trane Foundation GBC240
52 pages
To Next Page IconTo Next Page
To Next Page IconTo Next Page
To Previous Page IconTo Previous Page
To Previous Page IconTo Previous Page
Loading...
RT-SVX51H-EN
21
Filter Installation
Each unit ships with 2-inch filters installed. The
quantity of filters is determined by unit size. Access to
the filters is obtained by removing the filter access
panel.
Refer to the unit Service Facts (shipped with each unit)
for filter requirements
NNoottee:: Do not operate the unit without filters.
Field Installed MERV13 Filters
Optional MERV13 filters are available for purchase.
Replace standard filters with MERV13 Filters according
to the installation instructions provided in the kit.
Field Installed Power Wiring
An overall dimensional layout for the standard field
installed wiring entrance into the unit is illustrated in
“Dimensional Data,” p. 10. To insure the unit’s supply
power wiring is properly sized and installed, follow the
guidelines outlined below.
NNoottee:: All field installed wiring must conform to NEC
guidelines as well as state and Local codes.
Verify that the power supply available is compatible
with the unit’s nameplate ratings. The available supply
power must be within 10 percent of the rated voltage
stamped on the nameplate. Use only copper
conductors to connect the power supply to the unit.
NNOOTTIICCEE
UUssee CCooppppeerr CCoonndduuccttoorrss OOnnllyy!!
FFaaiilluurree ttoo uussee ccooppppeerr ccoonndduuccttoorrss ccoouulldd rreessuulltt iinn
eeqquuiippmmeenntt ddaammaaggee aass tthhee eeqquuiippmmeenntt wwaass nnoott
ddeessiiggnneedd oorr qquuaalliiffiieedd ttoo aacccceepptt ootthheerr ttyyppeess ooff
ccoonndduuccttoorrss..
NNoottee:: If the unit is not equipped with an optional
factory installed nonfused disconnect switch or
circuit breaker, a field supplied disconnect switch
must be installed at or near the unit in
accordance with the National Electrical Code
(NEC latest edition).
Main Unit Power
WWAARRNNIINNGG
PPrrooppeerr FFiieelldd WWiirriinngg aanndd GGrroouunnddiinngg
RReeqquuiirreedd!!
FFaaiilluurree ttoo ffoollllooww ccooddee ccoouulldd rreessuulltt iinn ddeeaatthh oorr
sseerriioouuss iinnjjuurryy..
AAllll ffiieelldd wwiirriinngg MMUUSSTT bbee ppeerrffoorrmmeedd bbyy qquuaalliiffiieedd
ppeerrssoonnnneell.. IImmpprrooppeerrllyy iinnssttaalllleedd aanndd ggrroouunnddeedd
ffiieelldd wwiirriinngg ppoosseess FFIIRREE aanndd EELLEECCTTRROOCCUUTTIIOONN
hhaazzaarrddss.. TToo aavvooiidd tthheessee hhaazzaarrddss,, yyoouu MMUUSSTT ffoollllooww
rreeqquuiirreemmeennttss ffoorr ffiieelldd wwiirriinngg iinnssttaallllaattiioonn aanndd
ggrroouunnddiinngg aass ddeessccrriibbeedd iinn NNEECC aanndd yyoouurr llooccaall//
ssttaattee//nnaattiioonnaall eelleeccttrriiccaall ccooddeess..
Standard Wiring
The electrical service must be protected from over
current and short circuit conditions in accordance with
NEC requirements.
Protection devices must be sized according to the
electrical data on the nameplate.
If the unit is not equipped with an optional factory
installed nonfused disconnect switch, a field
supplied disconnect switch must be installed at or
near the unit in accordance with the National
Electrical Code (NEC latest edition).
Location of the applicable electrical service
entrance is illustrated in “Dimensional Data,” p. 10.
Complete the unit’s power wiring connections onto
either; the main terminal block HTB1 inside the unit
control panel, the factory mounted nonfused
disconnect switch (UCD), or the electric heat
terminal block. Refer to the customer connection
diagram that shipped with the unit for specific
termination points.
Provide proper grounding for the unit in accordance
with local and national codes.
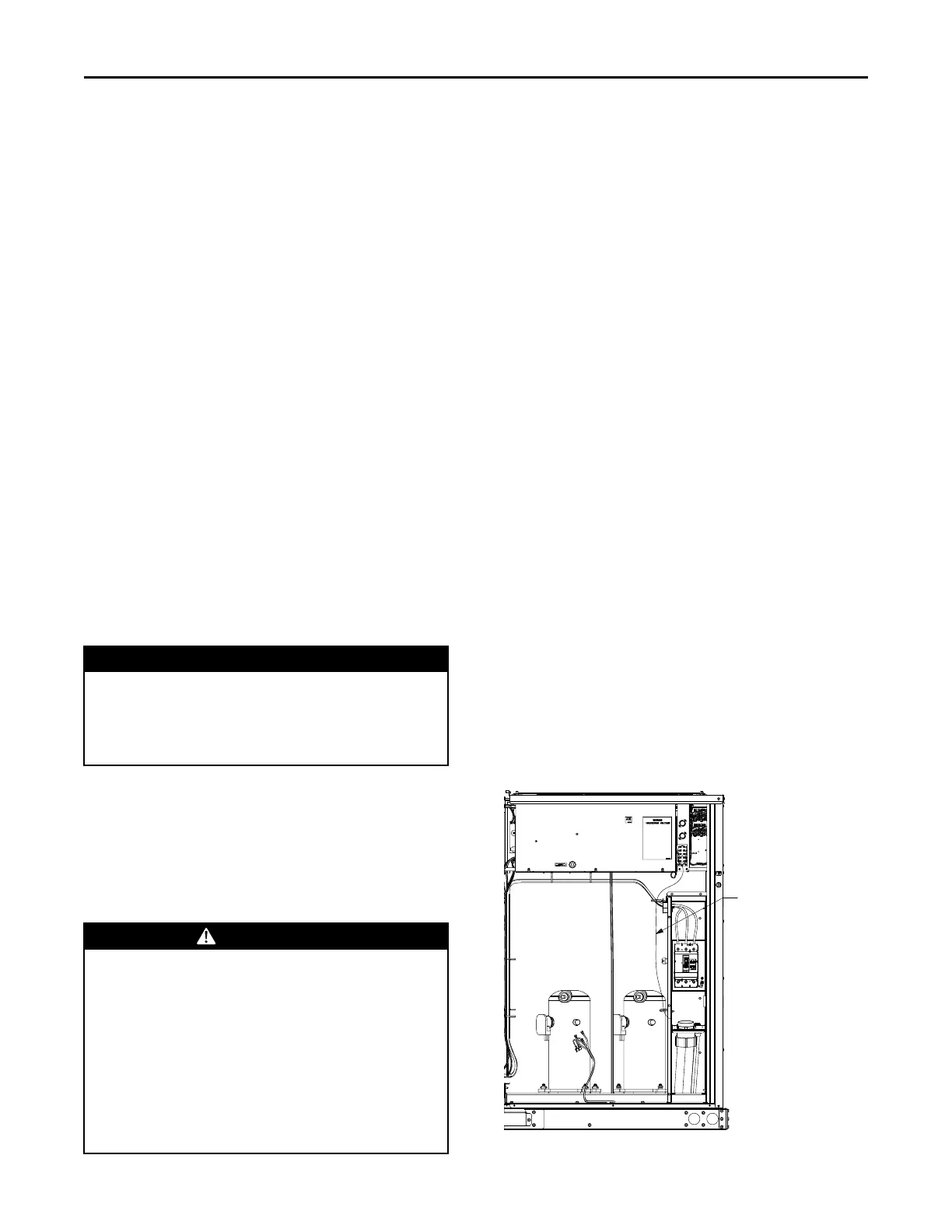
Optional TBUE Wiring (Through the Base
Electrical Option)
Location of the applicable electrical service is
illustrated below. Refer to the customer connection
diagram that is shipped with the unit for specific
termination points. The termination points,
depending on the customer option selected would
be a factory mounted nonfused disconnect switch
(UDC).
Provide proper grounding for the unit in accordance
with local and national codes.
Figure 18. Through the base electrical option
ELECTRO MECHANICAL
TBU FIELD WIRING.
ROUTE FIELD WIRING AS
SHOWN
IInnssttaallllaattiioonn

Table of Contents

Related product manuals