EasyManua.ls Logo

Trane GECA -006 - Page 13

Trane GECA -006
46 pages
Print Icon
To Next Page IconTo Next Page
To Next Page IconTo Next Page
To Previous Page IconTo Previous Page
To Previous Page IconTo Previous Page
Loading...
GECA-SVX01B-EN 13
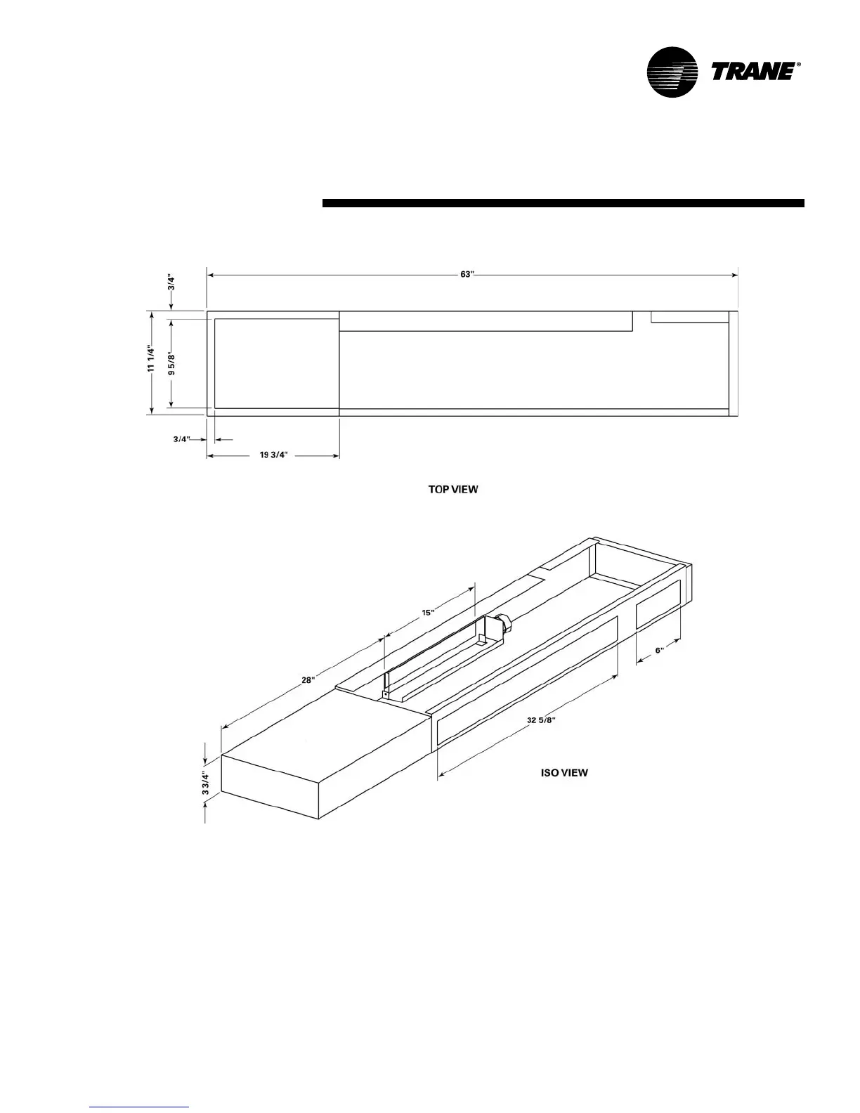
Dimensions/Weights
Subbase (LH) Extended Length

Related product manuals