EasyManua.ls Logo

Trane GECA -006 - Page 17

Trane GECA -006
46 pages
Print Icon
To Next Page IconTo Next Page
To Next Page IconTo Next Page
To Previous Page IconTo Previous Page
To Previous Page IconTo Previous Page
Loading...
GECA-SVX01B-EN 17
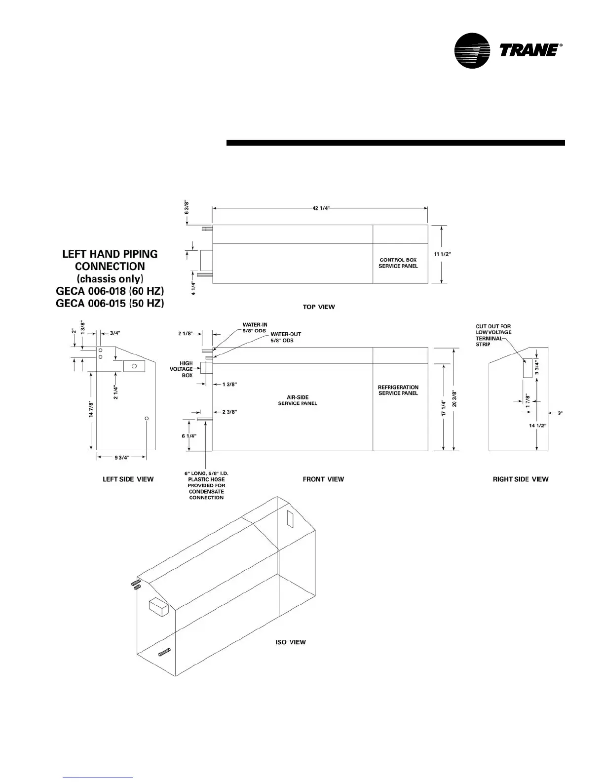
Dimensions/Weights
Chassis (LH)

Related product manuals