EasyManua.ls Logo

Trane GEVE - Page 116

Trane GEVE
124 pages
Print Icon
To Next Page IconTo Next Page
To Next Page IconTo Next Page
To Previous Page IconTo Previous Page
To Previous Page IconTo Previous Page
Loading...
116
WSHP-SVX01AA-EN
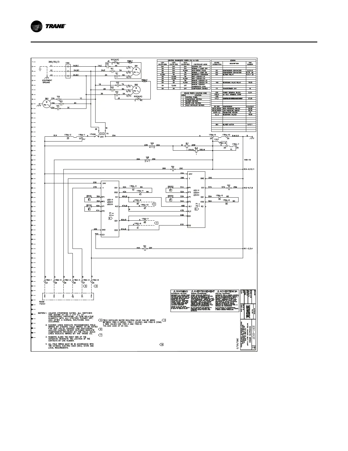
Figure 82. GEH_V (6 to 25 tons) - deluxe 380V - 420V - 50 Hz - 3 ph
1U1
1U2
CONNECTION FOR 24VAC CLASS 2 COMPRESSOR DISABLE
VERIFY TEST JUMPER HAS BEEN R EMOVED TO PREVENT
INPUT. TERMINAL 1TB2-7 AND 1TB2-8
CONTROL TIMING ERRORS.
CONTACTS RATED FOR CLASS 2 24V. TER MINAL 1TB2-9 AND 10.
ISOLATED GENERAL ALARM CONTACTS. CONTACTS CLOSE
WHEN CONTROL 1U1 AND 1U2 GOES INTO MANUAL LOCKOUT MODE.
CONNECT TERMINAL 11 TO 1TB2-1 &2 AND TERMINAL 10 TO 1TB2-3&4
IF USING ZONE SENSOR X13790886010.
WWiirriinngg DDiiaaggrraammss

Table of Contents

Other manuals for Trane GEVE

Related product manuals