EasyManua.ls Logo

Trane GEVE - Page 118

Trane GEVE
124 pages
Print Icon
To Next Page IconTo Next Page
To Next Page IconTo Next Page
To Previous Page IconTo Previous Page
To Previous Page IconTo Previous Page
Loading...
118
WSHP-SVX01AA-EN
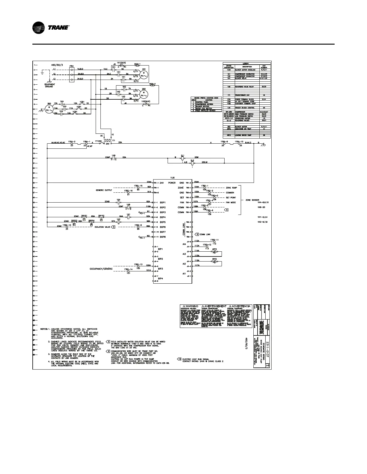
Figure 84. GEH_V (6 to 25 tons) - TracerĀ® ZN524 460V - 60 Hz - 3 ph
WWiirriinngg DDiiaaggrraammss

Table of Contents

Other manuals for Trane GEVE

Related product manuals