EasyManua.ls Logo

Trane MWD507 - Electrical Wiring Diagram

Trane MWD507
30 pages
Print Icon
To Next Page IconTo Next Page
To Next Page IconTo Next Page
To Previous Page IconTo Previous Page
To Previous Page IconTo Previous Page
Loading...
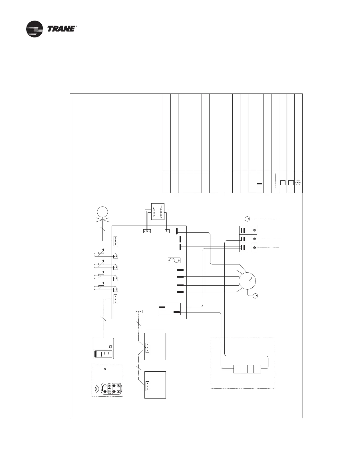
Electrical wiring diagram
MW(C)D507 ~ 518, without condensate water lift pump
Fan motor
FAN
EV1
TB1
WRC
J1
F1
T
Relay (for electric heater)
Wiring control panel
Terminal connector
Fuse
Transformer
Electronic expansion valve
AN1
AN2
AN3
AN4
N
L
Local wiring
Neutral
Power line
Coil middle temperature sensor
Coil outlet temperature sensor
Coil inlet temperature sensor
Connector on main board
Ground
Room temperature sensor
Factury wiring
EH
Electric heater
4
CN4/CN5
WRC
M
EV1
5
t
AN1
L
J1
P11
P6
T
F1
N
NPE
TB1
EH
220~240V/50Hz
L
L
M
MAIN BOARD
t
AN2
t
AN3
t
AN4
P9
MED
LOW
HIGH
P1
Option
R
Option
P10
SUP LOW
CN3
CN4TB2
3
N2
N1
CN1
CN2
CN8
3
FAN
1
REBL
BK
BR
YE
N
Out door
UNIT
In door
UNIT
26 AMS-SVX04A-EN

Related product manuals