EasyManua.ls Logo

Trane PTEC-120 - Schematic Diagrams; Standard and Heat Pump Unit Schematics

Trane PTEC-120
64 pages
Print Icon
To Next Page IconTo Next Page
To Next Page IconTo Next Page
To Previous Page IconTo Previous Page
To Previous Page IconTo Previous Page
Loading...
PTEC-M-1A
52
Schematic
Diagrams
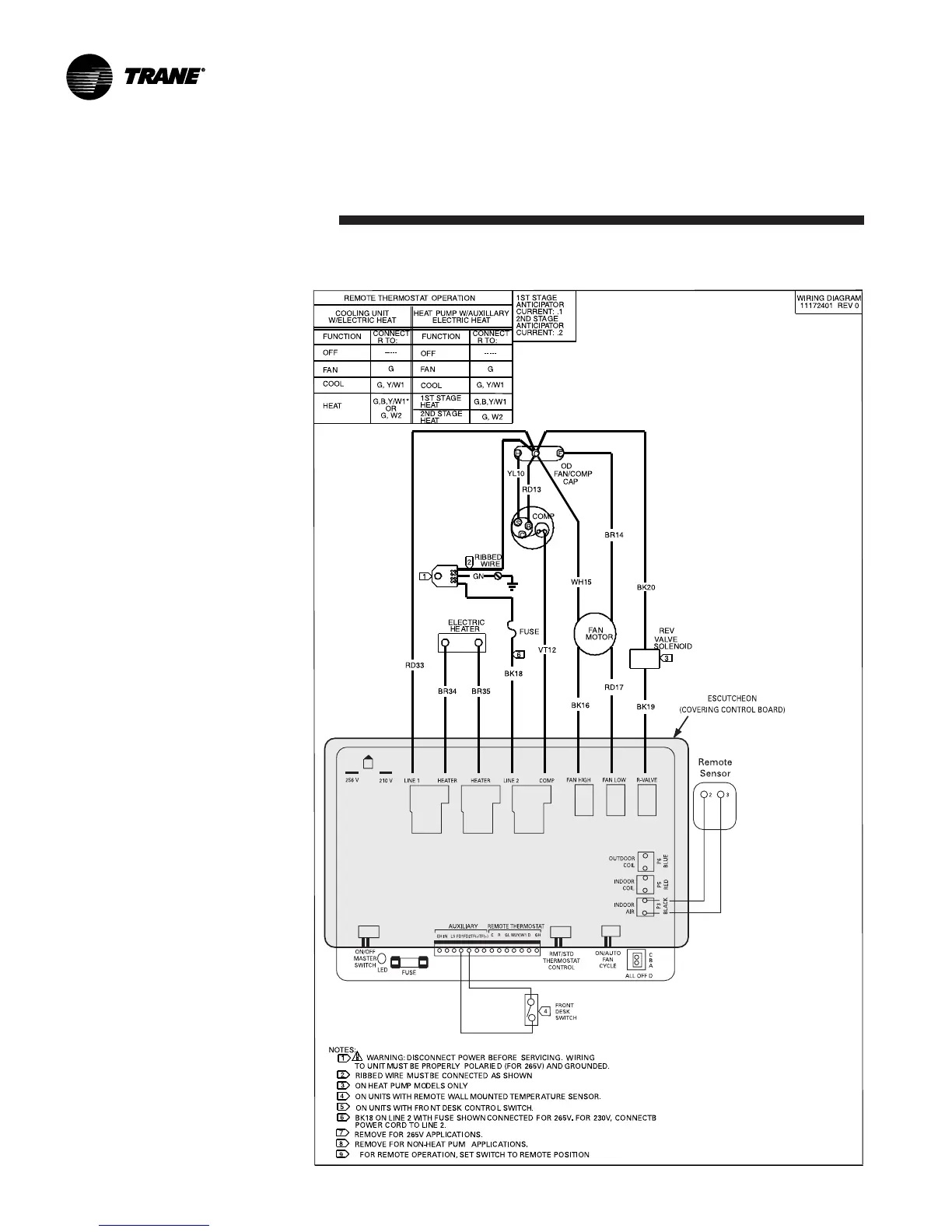
PTEC and PTHC Standard Unit - One Stage Heat (Temperature Sensor and Front Desk Control Added)

Related product manuals