EasyManua.ls Logo

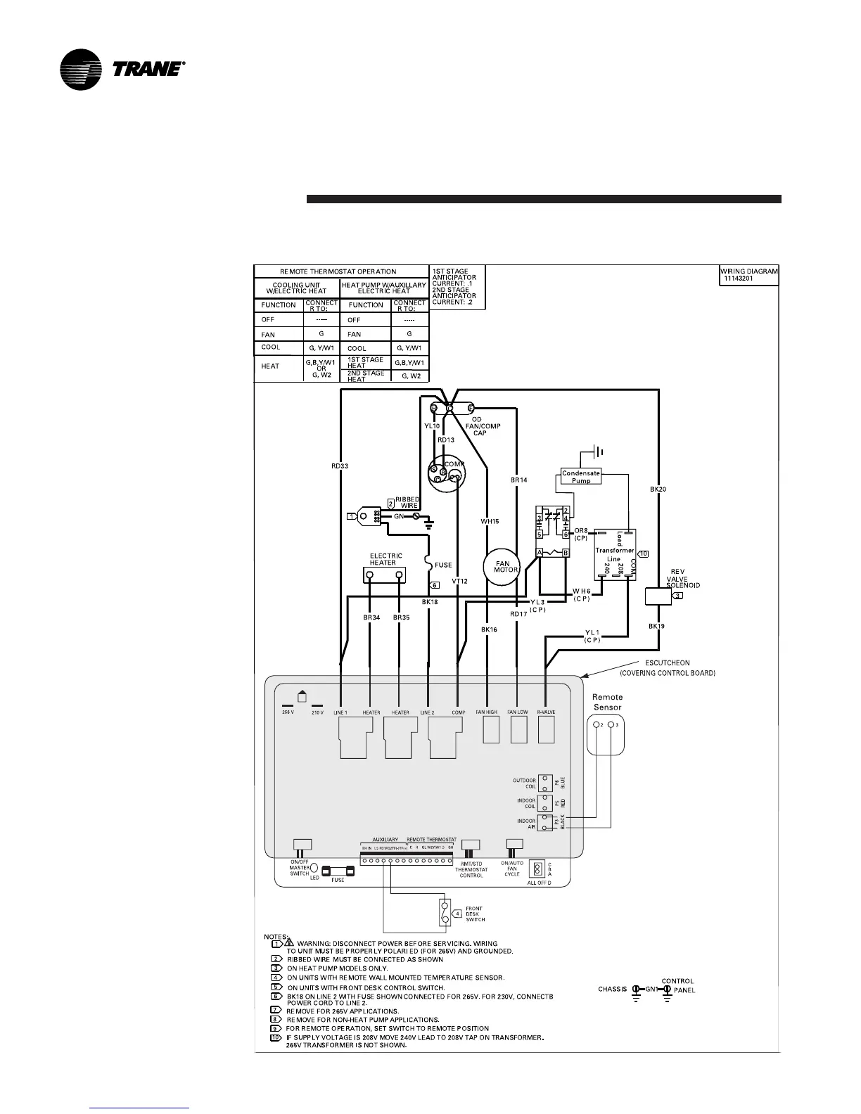
Trane PTEC-120 - Condensate Pump and Power Vent Schematics

Trane PTEC-120
64 pages
Print Icon
To Next Page IconTo Next Page
To Next Page IconTo Next Page
To Previous Page IconTo Previous Page
To Previous Page IconTo Previous Page
Loading...
PTEC-M-1A
54
Schematic
Diagrams
PTEC and PTHC (Condensate Pump - One Stage Heat)

Related product manuals