EasyManua.ls Logo

Trane THC102F - Page 17

Trane THC102F
68 pages
Print Icon
To Next Page IconTo Next Page
To Next Page IconTo Next Page
To Previous Page IconTo Previous Page
To Previous Page IconTo Previous Page
Loading...
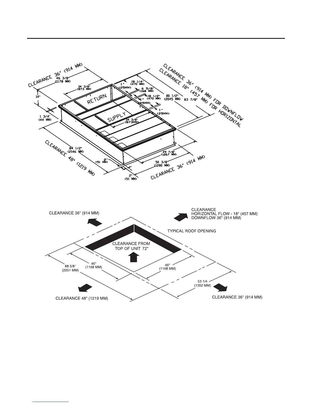
Unit Dimensions
RT-SVX22M-EN 17
Figure 6. 6, (single) ton standard efficiency,4-5tonhigh efficiency - roof curb
Note: All dimensions are in inches/millimeters.
(2130 MM)
(356 MM)
Figure 7. 6, (single) ton standard efficiency,4-5tonhigh efficiency - unit clearance and roof opening
Note: All dimensions are in inches/millimeters.

Table of Contents

Related product manuals