EasyManua.ls Logo

Trane THC102F - Page 18

Trane THC102F
68 pages
Print Icon
To Next Page IconTo Next Page
To Next Page IconTo Next Page
To Previous Page IconTo Previous Page
To Previous Page IconTo Previous Page
Loading...
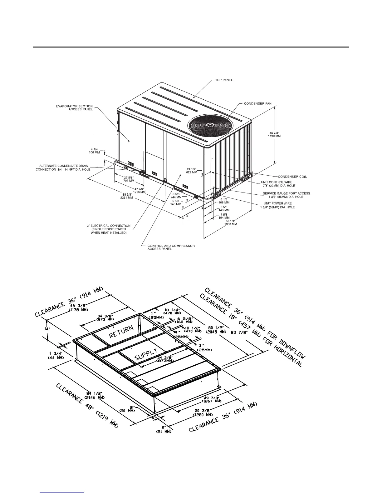
Unit Dimensions
18 RT-SVX22M-EN
Figure 8. ton (dual) - 10 ton standard efficiency, 6-8½ (microchannel) ton high efficiency, 6 ton dehumidification
Note: All dimensions are in inches/millimeters.
Figure 9. ton (dual) - 10 ton standard efficiency, 6-8½ (microchannel) ton high efficiency, 6 ton dehumidification
roof curb
Note: All dimensions are in inches/millimeters.
(2130 MM)
(356 MM)

Table of Contents

Related product manuals