EasyManua.ls Logo

Trane WCC030 - Field Wiring Diagrams; WCC-F Heat Pump Model Wiring; Accessory Connection Diagrams

Trane WCC030
28 pages
Print Icon
To Next Page IconTo Next Page
To Next Page IconTo Next Page
To Previous Page IconTo Previous Page
To Previous Page IconTo Previous Page
Loading...
IPB-99-7-EN-10-6-99 17
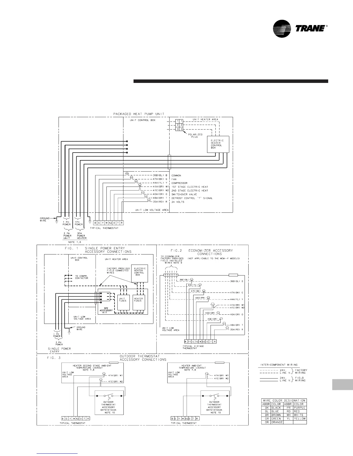
From Dwg. 21D756978
Field
Wiring
WCC-F Heat Pump Models
NOTES:
1. FUSED DISCONNECT SIZE, POWER WIRING AND
GROUNDING OF EQUIPMENT MUST COMPLY
WITH CODES.
2. BE SURE POWER SUPPLY AGREES WITH
EQUIPMENT AND HEATER NAMEPLATE.
3. LOW VOLTAGE WIRING TO BE 18 AWG MINIMUM
CONDUCTOR.
4. SEE HEATER NAMEPLATE FOR CURRENT
RATING OF HEATER USED.
5. SEE UNIT AND HEATER DIAGRAM FOR
ELECTRICAL CONNECTION DETAILS.
6. IF ELECTRIC HEATER ACCESSORY IS NOT
INSTALLED OMIT THE ELECTRIC HEATER,
ASSOCIATED POWER WIRES AND THE ‘W’ AND
‘X2’ THERMOSTAT WIRES.
7. FIG. 3 DEMONSTRATES CONNECTION OF THE
OUTDOOR THERMOSTAT ACCESSORY ONLY.
FOR FURTHER UNIT CONNECTION DETAILS
REFER TO THE OTHER FIGURES.
8. THE 41A(BR) WIRE IS FIRST STAGE ELECTRIC
HEAT. IF THE ELECTRIC HEATER ACCESSORY
HAS TWO HEATING STAGES THE 41C(BR) WIRE
IS SECOND STAGE ELECTRIC HEAT.
9. WHEN THE BAYECON054A OR –055A
ECONOMIZER IS INSTALLED THE BAYRLAY003
RELAY ACCESSORY KIT IS REQUIRED TO
INTERFACE THE ECONOMIZER TO THE HEAT
PUMP FOR PROPER SYSTEM OPERATION.
WHEN THE BAYECON054B OR –055B OR 073A
ECONOMIZER IS INSTALLED, THE BAYRLAY004A
RELAY ACCESSORY KIT IS REQUIRED TO
INTERFACE THE ECONOMIZER TO THE HEAT
PUMP FOR PROPER SYSTEM OPERATION.
10. THE BAYSTAT033A OUTDOOR THERMOSTAT
ACCESSORY KIT CONTAINS A THERMOSTAT
AND A RELAY. THE RELAY IS NOT REQUIRED
TO BE USED IN THIS APPLICATION.

Related product manuals