EasyManua.ls Logo

USFilter V-2000 - Page 102

Default Icon
126 pages
Print Icon
To Next Page IconTo Next Page
To Next Page IconTo Next Page
To Previous Page IconTo Previous Page
To Previous Page IconTo Previous Page
Loading...
IM 25.055AC UA (C/6-01)
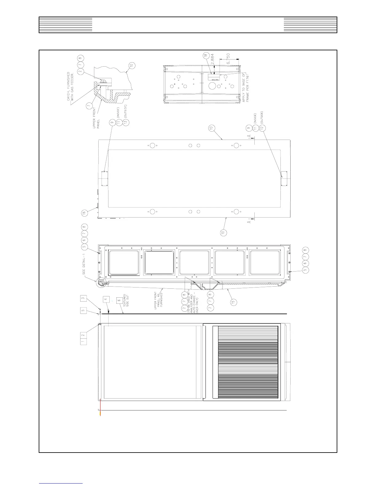
AUTOMATIC CHLORINATOR - 3000LB/24HR
92
MODULE ENCLOSURE - PARTS
25.055.004.010A
ISSUE 3 6-97
NOTE: FOR PARTS LIST, SEE DWG. 25.055.004.010B.