EasyManua.ls Logo

V2 STARK3-230V - Page 35

V2 STARK3-230V
Print Icon
To Next Page IconTo Next Page
To Next Page IconTo Next Page
To Previous Page IconTo Previous Page
To Previous Page IconTo Previous Page
Loading...
PORTUGUÊS
- 33 -
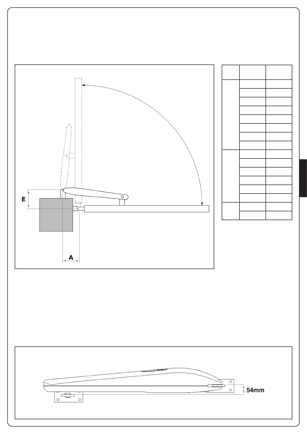
MEDIDAS DE INSTALAÇÃO
Para efectuar uma correcta instalação dos operadores e garantir
um funcionamento perfeito da automatização, é necessário
respeitar as cotas de medição referidas na tabela abaixo.
Eventualmente, modificar a estrutura do portão de maneira a
adaptá-lo a um dos casos referidos na tabela abaixo.
g
g
E [mm] A [mm]
90°
130 170
140 165
150 160
160 150
170 150
180 145
190 135
200 130
100°
130 155
140 150
150 145
160 140
170 140
180 135
110°
130 155
140 155
ALTURA DOS SUPORTES
Fixar os suportes repeitando uma distância de 54 mm entre faces
de forma a fixar horizontalmente o motorredutor.
FIG.3
FIG.2

Related product manuals