EasyManua.ls Logo

Vaisala PTB220 Series - Appendix C: RS232 C;TTL Serial Interface; RS232 C;TTL Serial Interface Signals

Vaisala PTB220 Series
113 pages
To Next Page IconTo Next Page
To Next Page IconTo Next Page
To Previous Page IconTo Previous Page
To Previous Page IconTo Previous Page
Loading...
APPENDIX C __________________________________________ RS232C/TTL LEVEL SERIAL INTERFACE
VAISALA _________________________________________________________________________ 81
APPENDIX C RS232C/TTL LEVEL SERIAL INTERFACE
The Appendix C shows connection of handshaking lines and the wave
forms, voltage levels and phases of the RS232C/TTL level serial
interface signals.
Handshaking lines (DCD, CTR, DSR, RTS and CTS) may have to be
connected at the host system end as illustrated below:
1 DCD
2
3
4 DTR
5
6 DSR
7 RTS
8 CTS
9
1
2
3
4 RTS
5 CTS
6 DSR
7
8 DCD
9
...
20 DTR
...
25
9-pin D connector 25-pin D connect
o
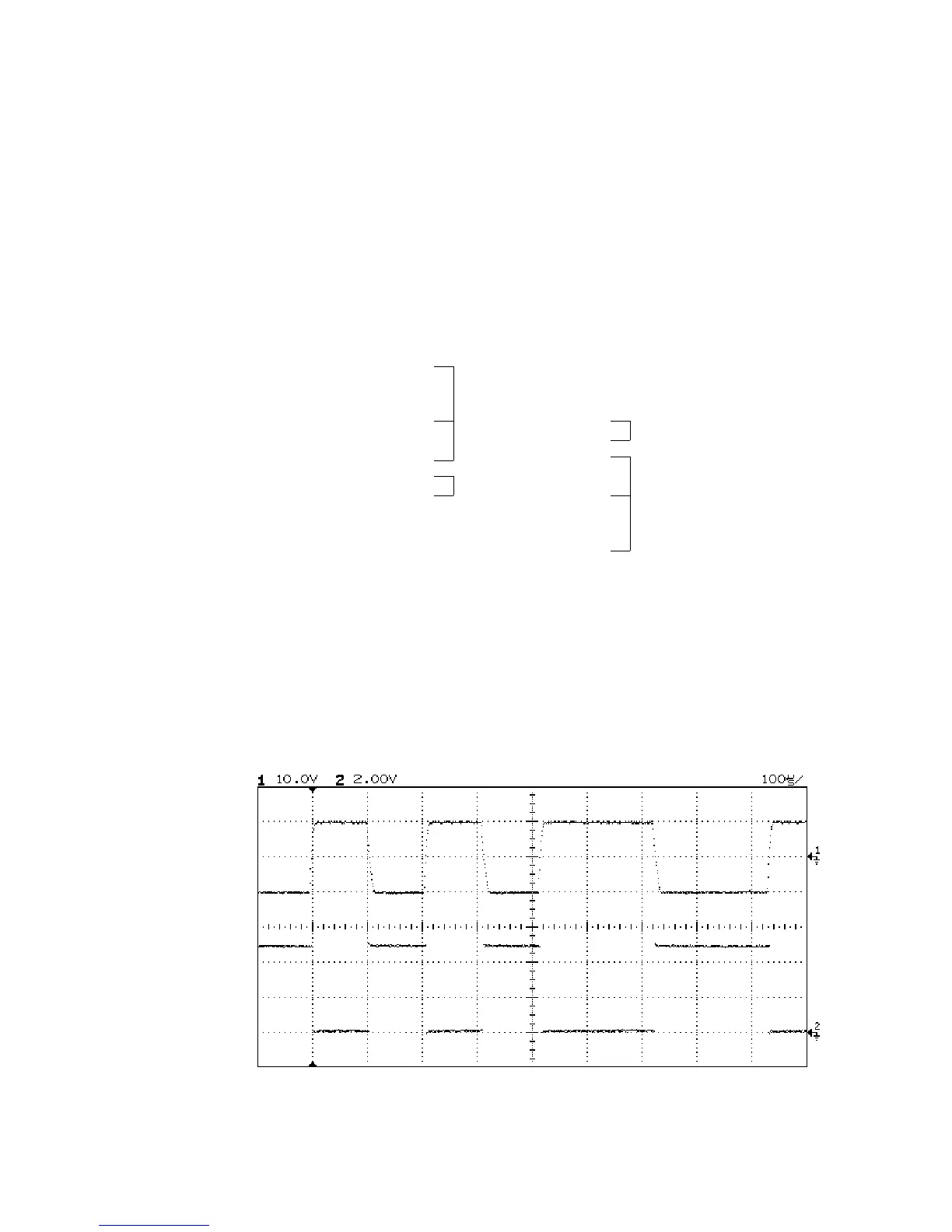
The next picture (below) shows a typical RS232C RX input signal
(upper signal) and TTL level serial RXD input signal (lower signal) at
baud rate 9600. The vertical scale is 10V/div for upper signal and
2V/div for lower signal. The ground level for each signal is shown
with a small arrow at the right. At the left, the signals are at rest. The
RXD inverted input signal has opposite phase compared to the RXD
signal shown here.

Table of Contents

Related product manuals