EasyManua.ls Logo

Vector VREF12-LB-RGD - Refrigeration Diagram - Refrigerators; Refrigeration Diagram - Freezers

Vector VREF12-LB-RGD
48 pages
Print Icon
To Next Page IconTo Next Page
To Next Page IconTo Next Page
To Previous Page IconTo Previous Page
To Previous Page IconTo Previous Page
Loading...
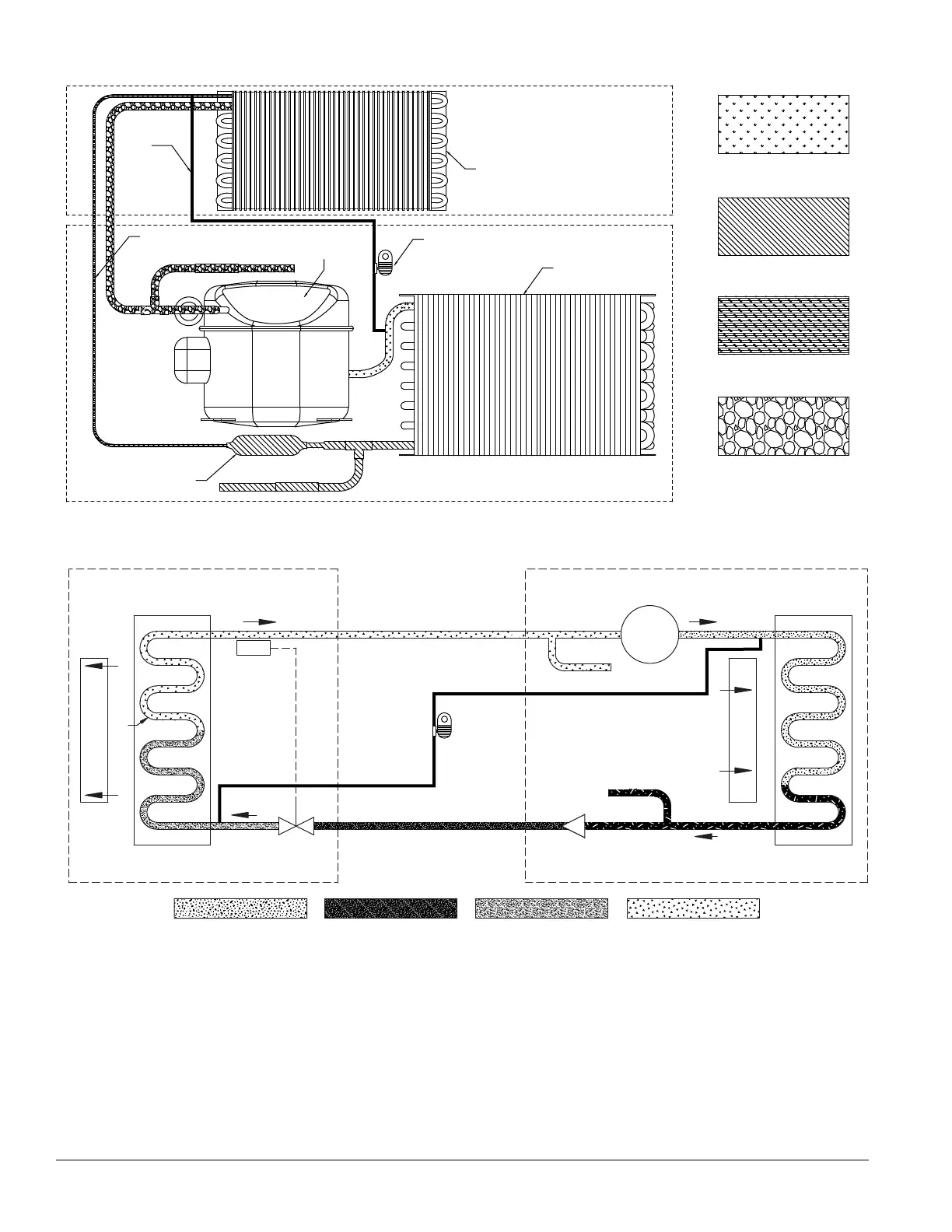
12 Vector Lab Products Refrigerators and Freezers
Refrigeration Diagram - Refrigerators
HIGH PRESSURE VAPOR
HIGH PRESSURE LIQUID
LOW PRESSURE LIQUID
LOW PRESSURE VAPOR
FILTER-DRIER
COMPRESSOR
HOT GAS
SOLENOID
HOT GAS
LINE
EVAPORATOR
CAPILLARY TUBE
CONDENSER
Refrigeration Diagram - Freezers
DRYER
HIGH PRESSURE VAPOR LOW PRESSURE VAPORHIGH PRESSURE LIQUID LOW PRESSURE LIQUID
COMPRESSOR
FAN
10oz. Charge
High Psi
Liquid
Low Psi
Liquid
High Psi
Vapor
Low Psi
Vapor
EVAPORATOR FAN
EVAPORATOR/DEFROST UNIT
CONDENSING UNIT
EVAPORATOR
TXV
HOT GAS
SOLENOID
HOT GAS LINE

Related product manuals