EasyManua.ls Logo

Vertiv Liebert DSE500 - Page 60

Vertiv Liebert DSE500
77 pages
Print Icon
To Next Page IconTo Next Page
To Next Page IconTo Next Page
To Previous Page IconTo Previous Page
To Previous Page IconTo Previous Page
Loading...
REV : 0
REV DATE : 3/18
DPN004706
Page :1 /4
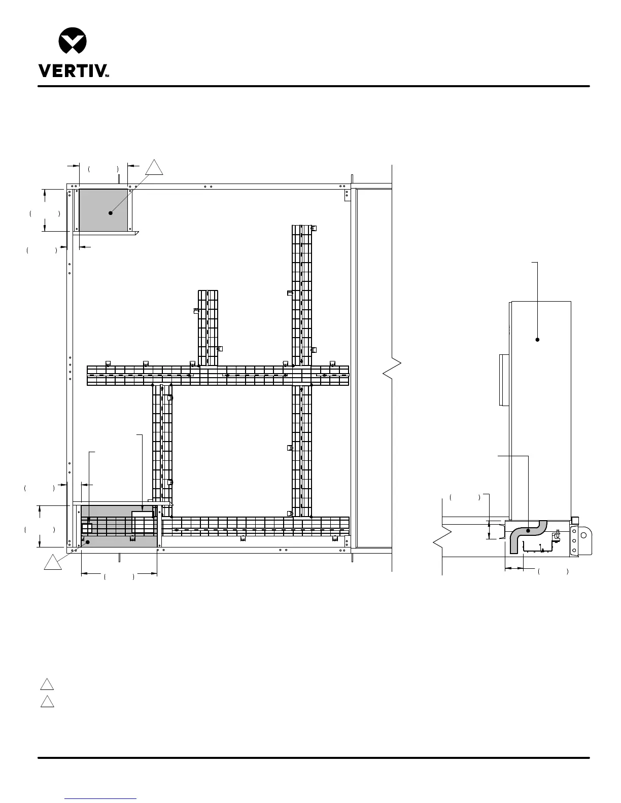
DP500 PERIMETER AND ROOFTOP UNIT
Form No.: DPN001040_REV4
EQUIPMENT FLOOR PLAN
LIEBERT DSE
Below Grating Level
(Top View)
Notes:
1. Grating is removable.
2. Main EP location. Detailed dimensions for penetration zone on DPN004332 Sheet 4.
3. Optional ATS location.
17 3/4"
449mm
20 1/2"
520mm
5 1/8"
130mm
17 5/8"
449mm
6"
152mm
32"
813mm
2
3
Rear View
Parts Hidden For Clarity
Rear Of Unit
5"
127mm
Main EP
Low Voltage
High Voltage
5"
127mm
Recommended
Flexible Conduit

Table of Contents

Related product manuals