EasyManua.ls Logo

Vertiv Liebert PPC - Floor Pedestal Installation

Vertiv Liebert PPC
52 pages
Print Icon
To Next Page IconTo Next Page
To Next Page IconTo Next Page
To Previous Page IconTo Previous Page
To Previous Page IconTo Previous Page
Loading...
Vertiv | Liebert
®
PPC
User Manual | Rev. 6 | 03/18 | 8
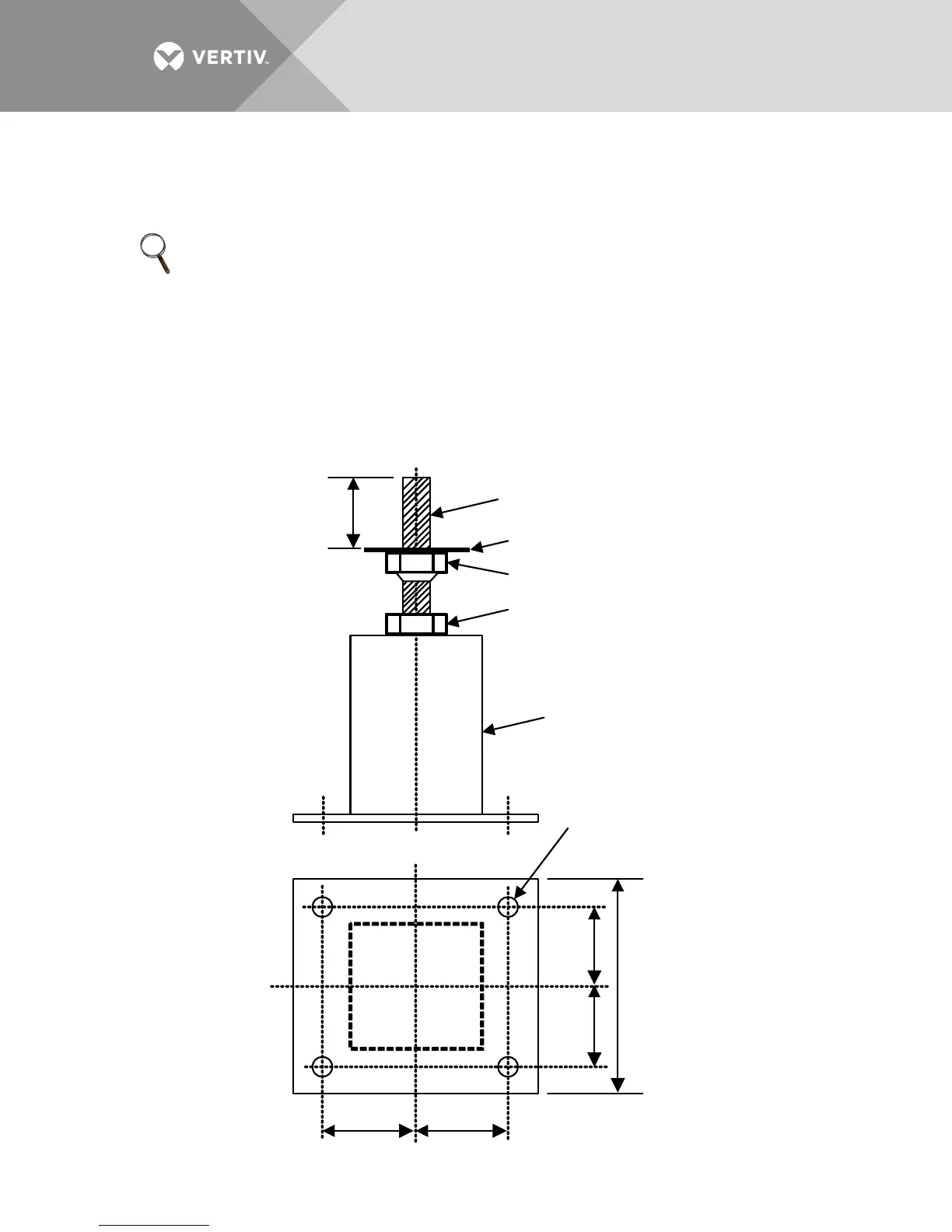
1.1.5 Floor Pedestal Installation
Floor pedestals are optional equipment intended to provide clearance for bottom cable entry without relying on
a raised floor to support the unit. The pedestals are adjustable over approximately 3-1/2 in. (89mm) to allow
leveling the unit and minor adjustments in the unit’s installed height.
1. Insert the pedestal threaded shaft into the inside corner tubing of the cabinet base as shown in Figures 1 and 2.
2. Adjust the pedestal height by turning the welded nut/shaft assembly into or out of the pedestal base as required.
3. Lock the height by tightening the jam nut against the pedestal base.
The pedestal may be secured to the floor by means of the four holes in the base. Locations of floor pedestals are
shown in Figures 1 and 2.
Figure 5 Floor pedestal details
NOTE
Floor pedestals may be reverse-assembled for shipping. Before installation, reassemble the pedestals as shown
in Figure 5. When the pedestal is properly assembled, the washer on top of the welded nut provides a bearing
surface for the unit’s weight.
6"
(152mm)
square
2-1/4"
(57mm)
2-1/4"
(57mm)
2-1/4"
(57mm)
2-1/4"
(57mm)
9/16" (14mm)
diameter
mounting holes
Pedestal
Base
Jam Nut
Welded Nut
Washer
Threaded
Shaft
3"
(76mm)

Table of Contents