EasyManua.ls Logo

VESDA LaserSCANNER VLS-200 - 4 Laserscanner Dimensions

VESDA LaserSCANNER VLS-200
27 pages
Print Icon
To Next Page IconTo Next Page
To Next Page IconTo Next Page
To Previous Page IconTo Previous Page
To Previous Page IconTo Previous Page
Loading...
VESDA
®
LaserSCANNER Installation Manual
Version 1.3 5
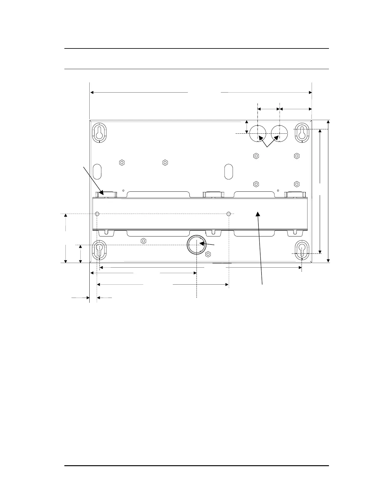
4. LaserSCANNER Dimensions
CE = Cable Entry Ports (25.4mm, 1.0in )
EP = Exhaust Air Port
Figure 1 Dimensions in mm (in) of LaserSCANNER with Mounting Bracket
(Rear View, Normal Orientation)
Note: Remove the centre pages of this manual for installation template. We strongly
recommend the use of this mounting bracket.
51.0
(2.0)
35.0
(1.37)
21.0
(0.83)
CE
350 (13.8)
209 (8.24)
EP
77.5
(3.05)
12.0
(0.47)
207 (8.15)
28.5
(1.12)
Mounting
Bracket
Bridge and
Lance
225
(8.9)
200
(7.87)
319
(12.56)

Related product manuals