EasyManua.ls Logo

VESDA VESDA-E VEP-A00-P - Dimensions

Default Icon
112 pages
Print Icon
To Next Page IconTo Next Page
To Next Page IconTo Next Page
To Previous Page IconTo Previous Page
To Previous Page IconTo Previous Page
Loading...
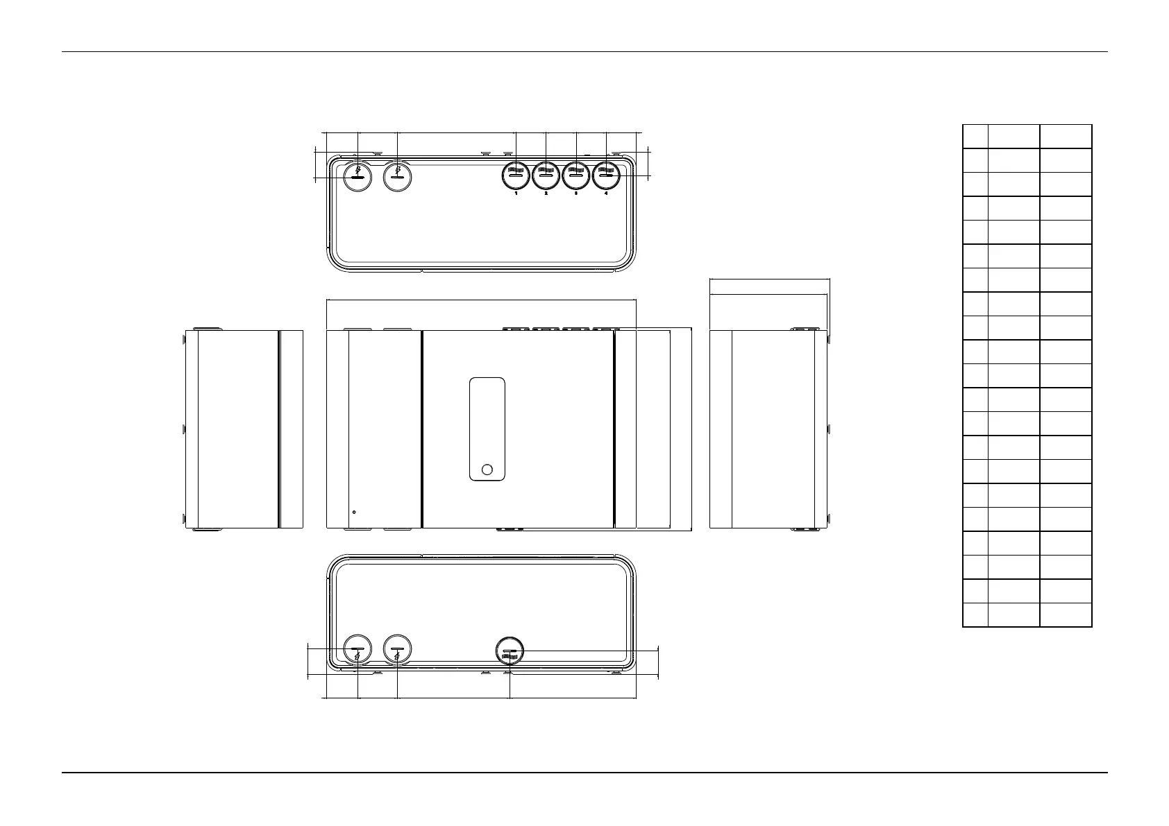
2.8 Dimensions
A
B C D E F G H
I
J
K
L
M
N
O
P Q R S
T
mm inch
A 28.5 1.12
B 35.0 1.38
C 45.0 1.77
D 134.0 5.28
E 34.0 1.34
F 34.0 1.34
G 34.0 1.34
H 34.0 1.34
I 26.5 1.04
J 350.05 13.78
K 224.0 8.82
L 230.2 9.06
M 135.48 5.3
N 132.28 5.21
O 28.5 1.12
P 35.0 1.38
Q 45.0 1.77
R 127.0 5.0
S 143.0 5.63
T 26.0 1.02
Figure2-4: Front, top, bottom and side dimensions
VESDA-EVEP-A00-P Product Guide
www.xtralis.com 11

Related product manuals