EasyManua.ls Logo

VESDA VESDA-E VES-A00-P - Page 19

VESDA VESDA-E VES-A00-P
124 pages
Print Icon
To Next Page IconTo Next Page
To Next Page IconTo Next Page
To Previous Page IconTo Previous Page
To Previous Page IconTo Previous Page
Loading...
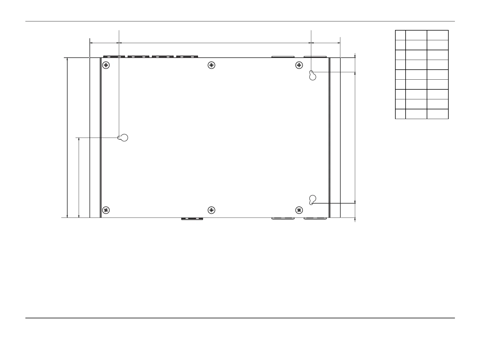
A
B
C D E
F
G
H
mm inch
A 224.0 8.82
B 112.0 4.41
C 40.9 1.61
D 268.39 10.57
E 40.71 1.6
F 20.25 0.8
G 183.5 7.22
H 20.25 0.8
Figure2-6: Rear Dimensions with hole locations for direct mounting
VESDA-EVES-A00-P Product Guide
www.xtralis.com 13

Related product manuals