EasyManua.ls Logo

ViewSonic IFP8650 - Wall Mount Kit Specifications (VESA)

ViewSonic IFP8650
109 pages
Print Icon
To Next Page IconTo Next Page
To Next Page IconTo Next Page
To Previous Page IconTo Previous Page
To Previous Page IconTo Previous Page
Loading...
3
1.2 Wall Mount Kit Specications (VESA)
Please follow the instructions in the wall mount installation guide to install your
wall mount or mobile mount bracket. If attaching to other building materials, please
contact your nearest dealer.
IFP50 series
Commercial Touch Display
Quick Start Guide
1
Package Contents
2
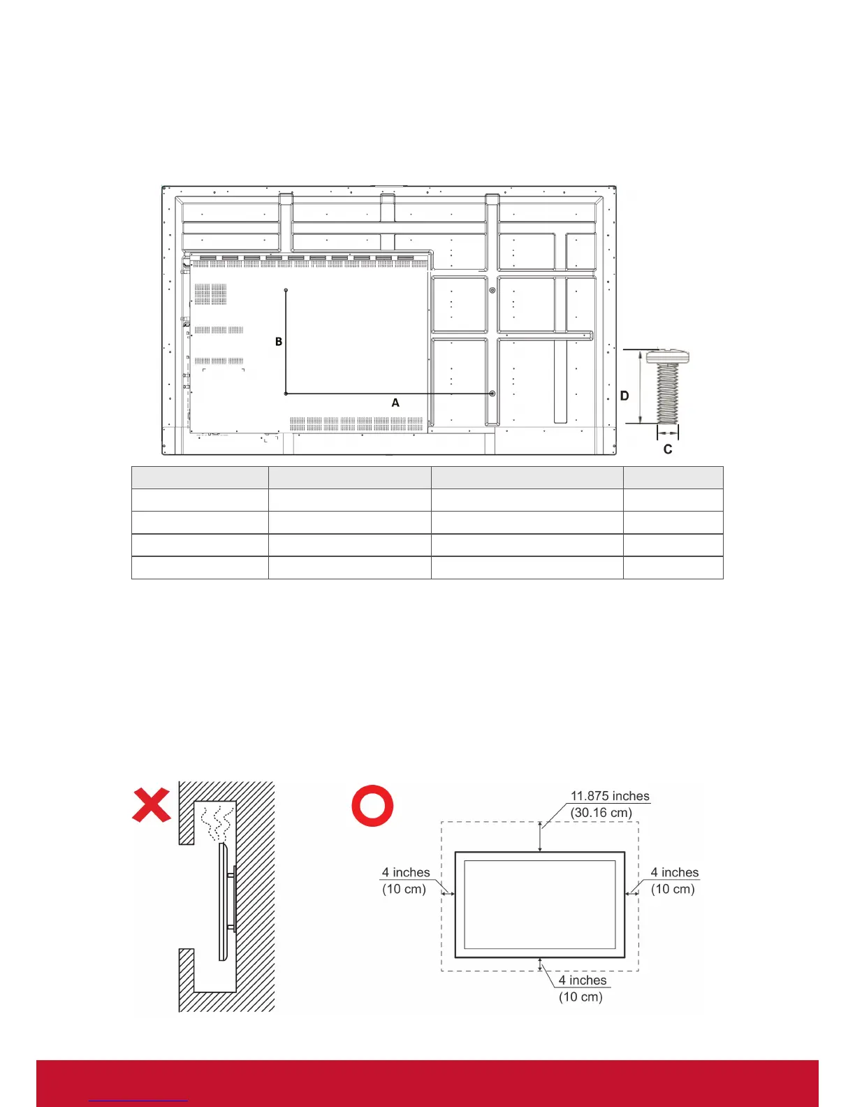
inch VESA Spec. (A x B) Standard Screw (C x D) Quantity
IFP6550 - 65” 600 x 400 mm M8 x 25 mm 4
IFP7550 - 75” 800 x 400 mm M8 x 25 mm 4
IFP8650 - 86" 800 x 600 mm M8 x 25 mm 4
A
B
VGA cable
Power cable x 4
Remote control
AAA battery x 2
USB cable
Audio cable
AV cable
Stylus pen x 3
User manual CD wizard
Quick start guide
RS232 adapter
Clamp x 5
Plate
Screw x 3
PC System Requirements
Intel
®
Pentium
®
processor or
greater running on
Windows
®
Platform,
4x CD-ROM drive; 64MB or
more of available RAM;
800x600 color display.
Mac
®
System Requirements
Mac OS version 10.x;
4x CD-ROM drive; 64MB or
more of available RAM;
800x600 color display.
Copyright © 2016, ViewSonic Corporation. All rights reserved. All trademarks,
registered or otherwise, are the property of their respective companies. Disclaimer:
ViewSonic Corporation shall not be liable for technical or editorial reeors or omissions
contained herein; nor for incidental or consequential damages resulting from
furnishing this meterial, or the performance or use of this product. In the interest of
continuing product improvement, ViewSonic Corporation reserves the right to
change product specifications without notice. Information in this CD-ROM may
change without notice, No part of this CD-ROM may be copied, reproduced, or
transmitted by any means, for any purpose without prior written permission of
ViewSonic Corporation.
07/13/16 CDE61T_UG Made in China
CDE5561T/CDE6561T/CDE7061T/IFP7561T/
CDE8452T/SWB5561B/SWB6561B/
SWB7061B/SWB8452B
User Guide and
Installation Software
PN-WMK-047
3
Control Panel Overview
USB USB USB
Wall Mount Kit Specifications (VESA)
inch VESA Spec. (A x B) Standard Screw (C x D) Quantity
IFP5550 - 55” 400 x 400mm M8 x 25 mm 4
IFP6550 - 65” 600 x 400 mm M8 x 25 mm 4
IFP7550 - 75” 800 x 400 mm M8 x 25 mm 4
IFP8650 - 86” 800 x 400 mm M8 x 25 mm 4
ViewSonic provides the standard dimensions for wall mount kits as shown in the
table above.
To find the perfect mount, please browse www.viewsonic.com or call our service
team.
When purchasing our wall mount kit, a detailed install manual and all parts
necessary for assembly are provided.
Do not use the screws that longer than the standard dimension, as they may
cause damage to the inside of the LCD display set.

Other manuals for ViewSonic IFP8650

Related product manuals