EasyManua.ls Logo

Vmac PREDATAIR60 - Page 18

Vmac PREDATAIR60
45 pages
Print Icon
To Next Page IconTo Next Page
To Next Page IconTo Next Page
To Previous Page IconTo Previous Page
To Previous Page IconTo Previous Page
Loading...
VMAC – Vehicle Mounted Air Compressors
Toll Free: 1-800-738-8622 Local: 1-250-740-3200
Fax: 1-250-740-3201
18
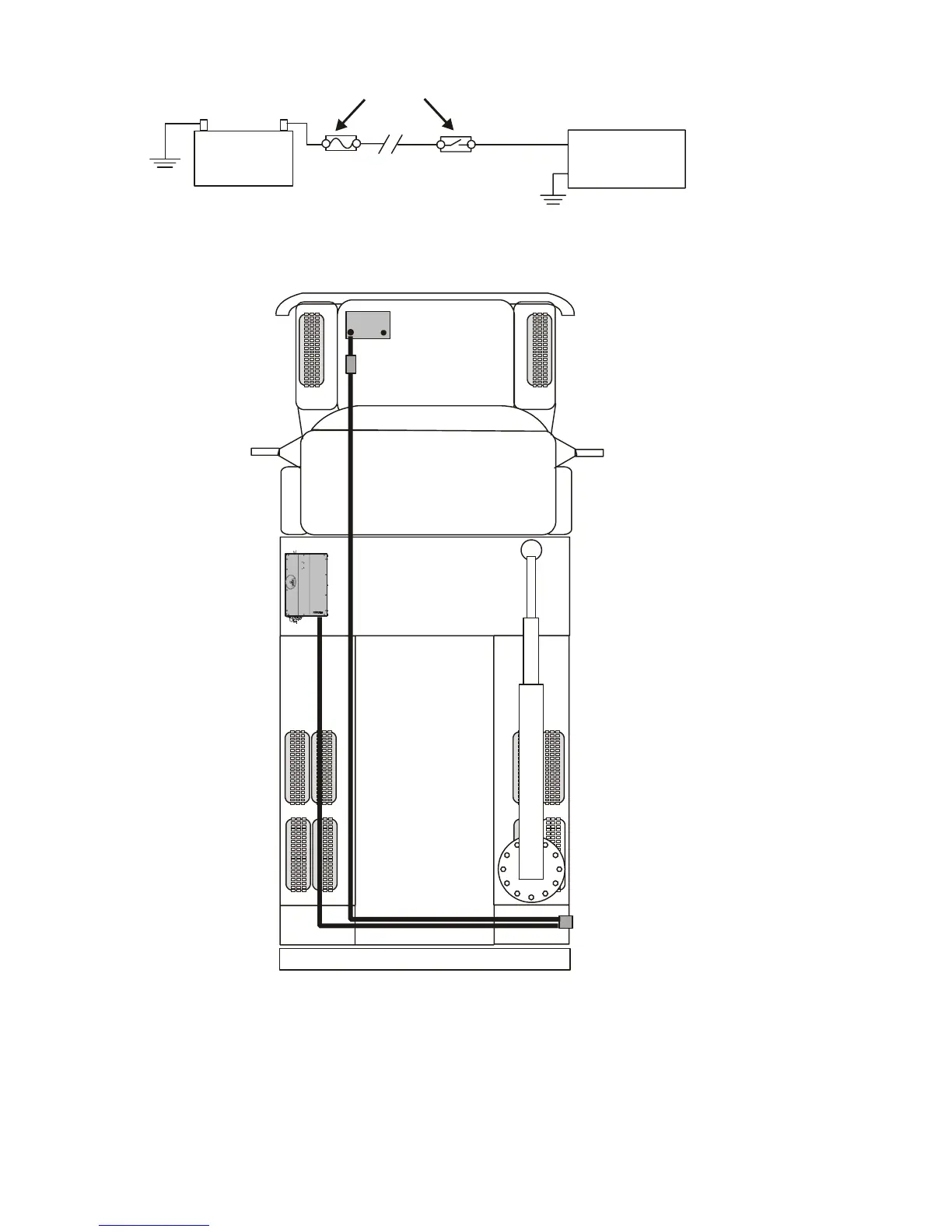
Battery
Fuse
+
Remote
Switch
PREDATAIR60
Battery
F
use or c
i
rcu
i
t
b
rea
k
er
(separate or built into switch)
30A
PREDATAIR60
Remote switch
see table 1 for correct wire gauge
*
**
*
Ground to chassis or back
to battery negative terminal
Red
Green
Figure 13 – Direct actuating
This method is NOT recommended, because the heavy current
carrying wires are too long.

Related product manuals