Home
Wacker Neuson
Portable Generator
G 50
Page 73 (Wiring Diagram (Factory-Installed Options))
Wacker Neuson G 50 - Wiring Diagram (Factory-Installed Options)
98 pages
Manual
Save Page as PDF
To Next Page
To Next Page
To Previous Page
To Previous Page
Loading...
G 50
Factory-Inst
alled Options
wc_tx001016gb.fm
73
6.12
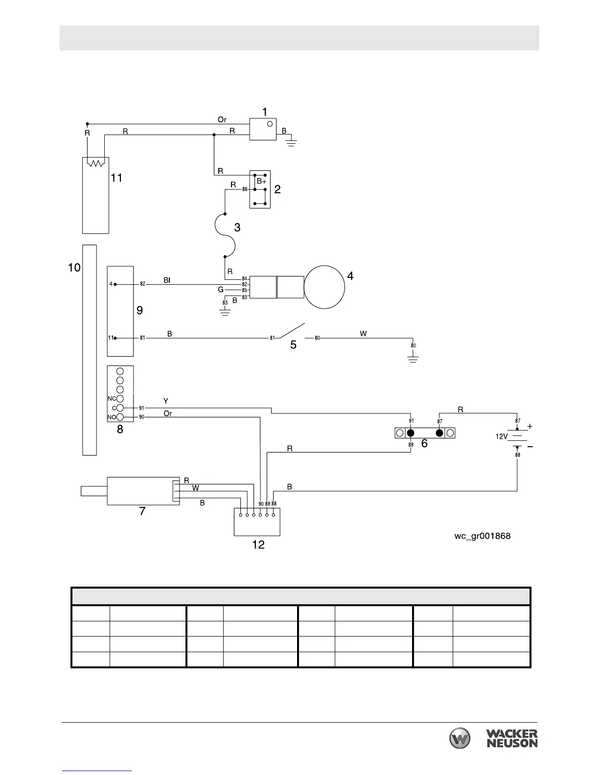
Wiring Diagram (Factory-Installed Options)
Wire Colors
B
Black
R
Red
Y
Yellow
Or
Orange
G
G
reen
T
Tan
Br
Brown
Pr
Purple
L
Blue
V
Violet
Cl
Clear
Sh
Shield
P
Pink
W
White
Gr
Gray
LL
Light blue
72
74
Table of Contents
Main Page
Default Chapter
3
Foreword
3
Table of Contents
5
1 Safety Information
9
Signal Words Used in this Manual
9
Machine Description and Intended Use
10
Operating Safety
12
Service Safety
14
Operator Safety While Using Internal Combustion Engines
16
Towing Safety
17
Reporting Trailer Safety Defects
17
2 Labels
18
Label Locations
18
Label Meanings
20
3 Lifting and Transporting
29
Lifting the Machine
29
Towing the Machine
29
4 Operation
32
Safety Notices
32
CO Alarms
32
Refueling the Machine
33
Control Panel
34
Voltage Selector Switch
36
Emergency Stop Switch
37
Generator Monitoring
38
Engine Monitoring
39
Engine Shutdown Faults
40
Current Overload Fault
41
Event Log
41
Main Line Circuit Breaker
42
Engine Start Switch
43
Voltage Adjustment Rheostat
43
Warning Light
43
Connection Lugs
44
Grounding the Generator
45
Convenience Receptacles
46
Remote Run Terminal Block
46
Panel Door Interlock Switch
46
Terminal Connections
47
Before Starting
48
Manual Start-Up
48
Table of Contents G
50
Running the Generator
51
Engine Power Correction Factors
52
Shutting down the Generator
52
Cold Weather Start-Up
52
Automatic/Remote Start-Up
53
Remote/Transfer Switch
54
5 Using the LCD Panel and Keypad
55
Navigating the Menus
56
Entering Passwords
58
Adjusting Screen Contrast
59
Setting the Time or Date
60
Changing User Preferences
61
Changing / Disabling Low Fuel Fault
62
Changing Cooldown Time
63
6 Factory-Installed Options
64
Engine Block Heater Option
64
Electronic Governor
65
Automatic LCD Heat
66
Low Coolant Shutdown
67
Lube Level Maintainer
68
Temperature-Activated Shutters
69
Lockable Battery Disconnect
69
Extended Run Tank
70
Battery Charger
70
Camlocks
71
6.11 Containment System
72
Wiring Diagram (Factory-Installed Options)
73
Wiring Diagram Components (Factory-Installed Options)
74
7 Maintenance
75
Periodic Maintenance Schedule
75
New Machines
76
Resetting the Periodic Maintenance Timer
76
Electronic Control Unit (ECU)
77
Servicing the Air Cleaner
78
Engine Oil
79
Checking Engine Coolant
80
Troubleshooting Automatic Shutdown
81
Maintaining the Trailer
83
8 Technical Data
84
Engine
84
Generator
85
Machine
85
Trailer and Skid
86
Dimensions
87
9 Schematics
89
Generator and Receptacle Wiring
90
Generator and Receptacle Wiring Components
91
Engine Wiring
92
Engine Wiring Components
93
Trailer Wiring
94
Trailer Wiring Components
95
Related product manuals
Wacker Neuson G 5.6A
42 pages
Wacker Neuson G 2.5A
22 pages
Wacker Neuson G 70
92 pages
Wacker Neuson G 85
92 pages
Wacker Neuson G 25
214 pages
Wacker Neuson G 14
68 pages
Wacker Neuson G 150
74 pages
Wacker Neuson G 3.7A
96 pages
Wacker Neuson G 2.1A
52 pages
Wacker Neuson G50
84 pages
Wacker Neuson GS 9.7V
96 pages
Wacker Neuson GP 5600A
62 pages