EasyManua.ls Logo

Wacker Neuson G 50 - Generator and Receptacle Wiring

Wacker Neuson G 50
98 pages
Print Icon
To Next Page IconTo Next Page
To Next Page IconTo Next Page
To Previous Page IconTo Previous Page
To Previous Page IconTo Previous Page
Loading...
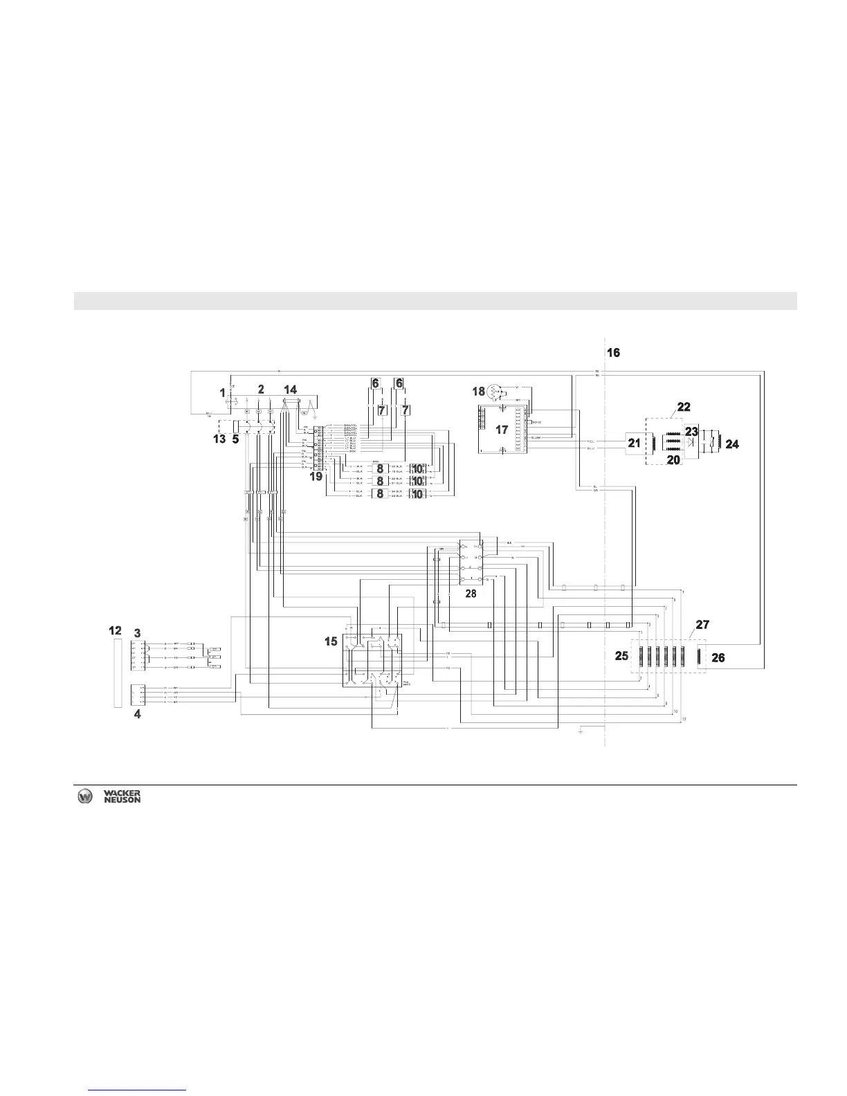
Schematics G 50
9 0
9.1 Generator and Receptacle Wiring
1
16
9
10
15
14
T11
1
9
7
3
1
5
10
8
12
2
6
4
T1
G
Y
X
G
Y
X
G
X
Y
GRN
R1
R2
T3
T6
T2
36
36A
RE
RE
YEL
VI
5C
5B
WHT
6
5A
5
4
3A
3
4A
7
AM
STA
VOL
HZ
BLU/W
60HZ
BLU
BL
GR
BLK
L3
T11
T3
2
T4
N
L2
T8
L1
T9
26
6
25
1
1
1
1
3
1
9
1
1
1
1
1
1
G
N
PAI
R
BLK
K
GRN/YEL
GRN/YEL
GRN/YEL
GRN/YEL
LT BLU
LT BLU
LT BLU
GRN/YEL
BRN
22 BLK
19 BLK
20 BLK
21 BLK
23 BLK
24 BLK
2
1
2
3
5
6
7
4
8
4
5
7
8
PAI
R
BLK
PAI
R
BLK
N
BRN
LT BLU
BLK
BLK
BLK
BLK
BLK
BLK
PAI
R
BLK
K
LT BLU
1
L
L
L
BLU
18
BLU/W
18
CT-
CT-
CT-
2
2
1
1
2
2
1
1
1
2
2
2
2
2
1
4
1
1
4
SWITC
PHA
1
CT-
CT-
CT-
3
3
OR
WHT
3
3
BR
YE
6
6
7
7
7
7
CT
CT
CT
CT
4
4
OR
BR
YE
4
3
3
3
L
L
L
T
T12
T
T10
4
4
4
WH
CT
CT
N4
N3
N2
N3
N3
N2
N2
N2
N2
N2
N2
N2
wc_gr007674

Table of Contents

Related product manuals