EasyManua.ls Logo

Wartsila 46F - Page 73

Wartsila 46F
208 pages
Print Icon
To Next Page IconTo Next Page
To Next Page IconTo Next Page
To Previous Page IconTo Previous Page
To Previous Page IconTo Previous Page
Loading...
6.3.4.6 MDF separator in HFO installations (1S02)
A separator for MDF is recommended also for installations operating primarily on HFO. The
MDF separator can be a smaller size dedicated MDF separator, or a stand-by HFO separator
used for MDF.
6.3.4.7 Sludge tank (1T05)
The sludge tank should be located directly beneath the separators, or as close as possible
below the separators, unless it is integrated in the separator unit. The sludge pipe must be
continuously falling.
6.3.5 Fuel feed system - MDF installations
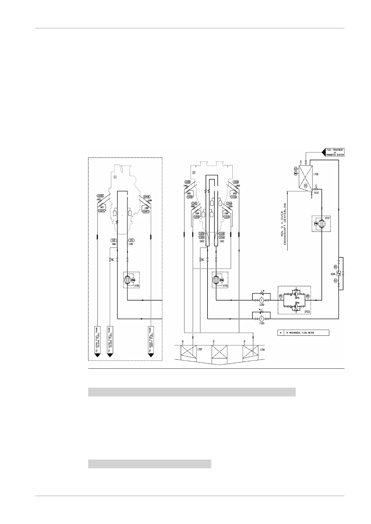
Fig 6-5 Example of fuel oil system, MDF (DAAF42878)
System components
Circulation pump (MDF)1P03Diesel engine Wärtsilä L46F01
Leak fuel tank, clean fuel1T04Adaptor02
Day tank (MDF)1T06Cooler (MDF)1E04
Leak fuel tank, dirty fuel1T07Fine filter (MDF)1F05
Quick closing valve1V10Suction strainer (MDF)1F07
Leak fuel drain, dirty fuel104Flow meter (MDF)1I03
Pipe connections
Fuel inlet101
DAAB605814 6-17
6. Fuel Oil SystemWärtsilä 46F Product Guide

Table of Contents

Related product manuals