EasyManua.ls Logo

Wartsila 46F - Page 80

Wartsila 46F
208 pages
Print Icon
To Next Page IconTo Next Page
To Next Page IconTo Next Page
To Previous Page IconTo Previous Page
To Previous Page IconTo Previous Page
Loading...
One viscosimeter for control of the heaters
One control valve for steam or thermal oil heaters, a control cabinet for electric heaters
One temperature sensor for emergency control of the heaters
One control cabinet including starters for pumps
One alarm panel
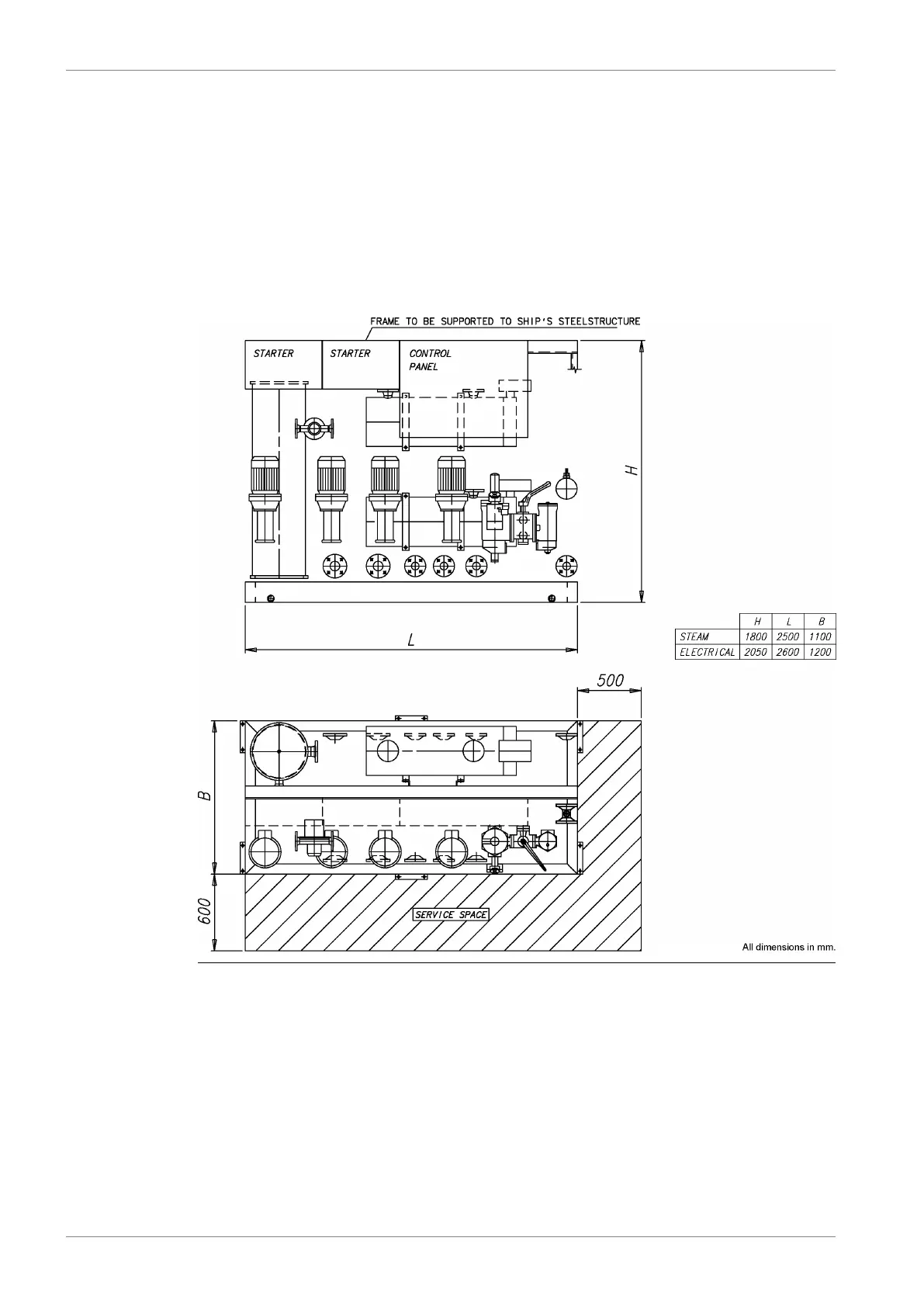
The above equipment is built on a steel frame, which can be welded or bolted to its foundation
in the ship. The unit has all internal wiring and piping fully assembled. All HFO pipes are
insulated and provided with trace heating.
Fig 6-9 Feeder/booster unit, example (DAAE006659)
Fuel feed pump, booster unit (1P04)
The feed pump maintains the pressure in the fuel feed system. It is recommended to use a
screw pump as feed pump. The capacity of the feed pump must be sufficient to prevent
pressure drop during flushing of the automatic filter.
A suction strainer with a fineness of 0.5 mm should be installed before each pump. There
must be a positive static pressure of about 30 kPa on the suction side of the pump.
Design data:
6-24 DAAB605814
Wärtsilä 46F Product Guide6. Fuel Oil System

Table of Contents

Related product manuals