EasyManua.ls Logo

Wascomat D783 - Evacuation System; Air Principle

Wascomat D783
52 pages
Print Icon
To Next Page IconTo Next Page
To Next Page IconTo Next Page
To Previous Page IconTo Previous Page
To Previous Page IconTo Previous Page
Loading...
30
Installation manual
6 Evacuation system
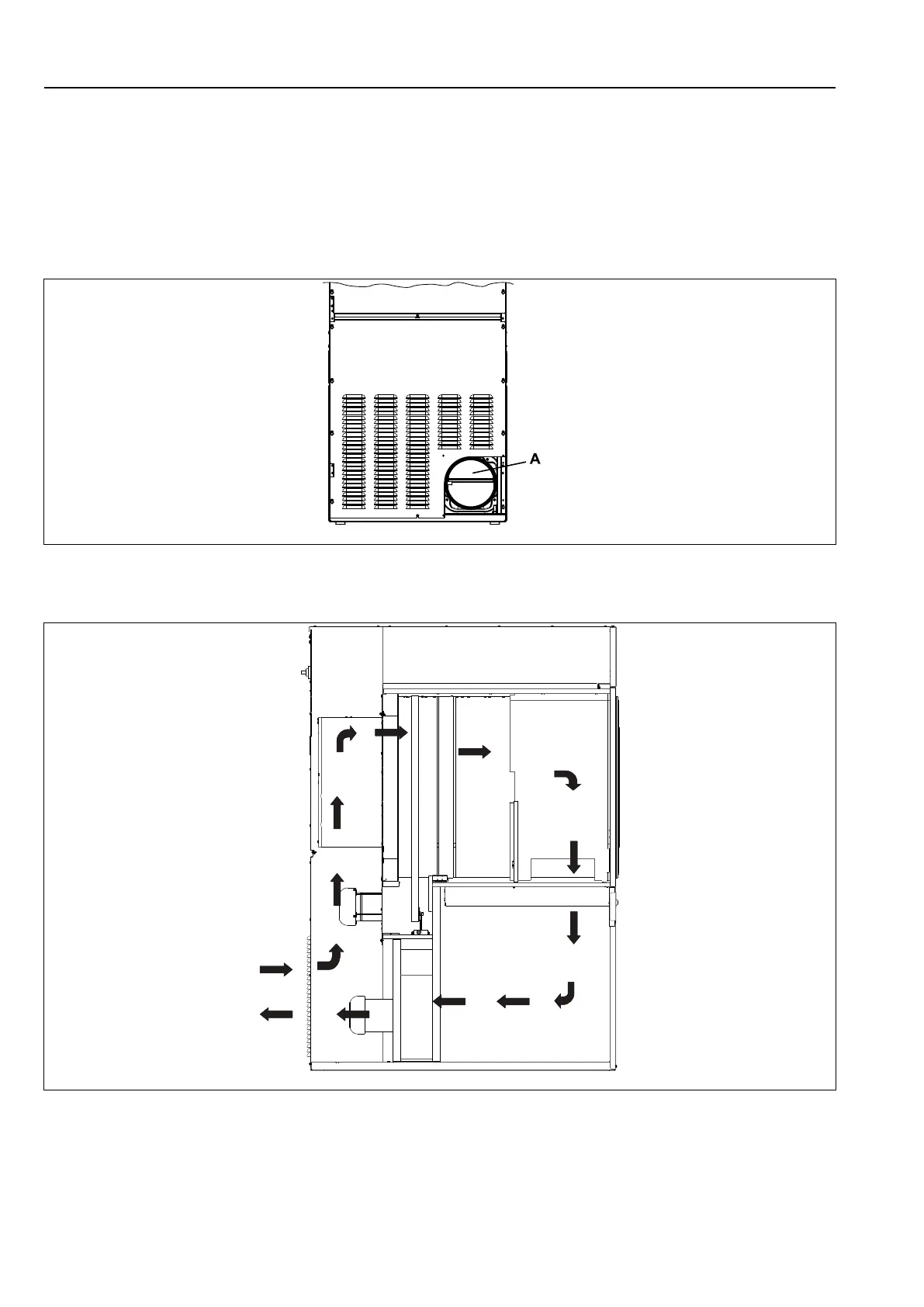
6.1 Air principle
The fan creates low pressure in the machine, drawing air into the drum via the heating unit.
The heated air passes through the garments and the drum holes.
The air then flows out through a lint filter positioned below the drum. Then the air is evacuated through the fan and
exhaust system.
Dimension for air evacuation (A) is 200 mm / 7 7/8 inch.
fig.W00264
Note!
It is very important that the machine gets enough fresh air in order to get the best drying result.
fig.X00765

Related product manuals