EasyManua.ls Logo

Webasto Thermo Top C-B

Webasto Thermo Top C-B
58 pages
Go to English
To Next Page IconTo Next Page
To Next Page IconTo Next Page
To Previous Page IconTo Previous Page
To Previous Page IconTo Previous Page
Loading...
Thermo Top C / Thermo Top E Schaltpläne
21
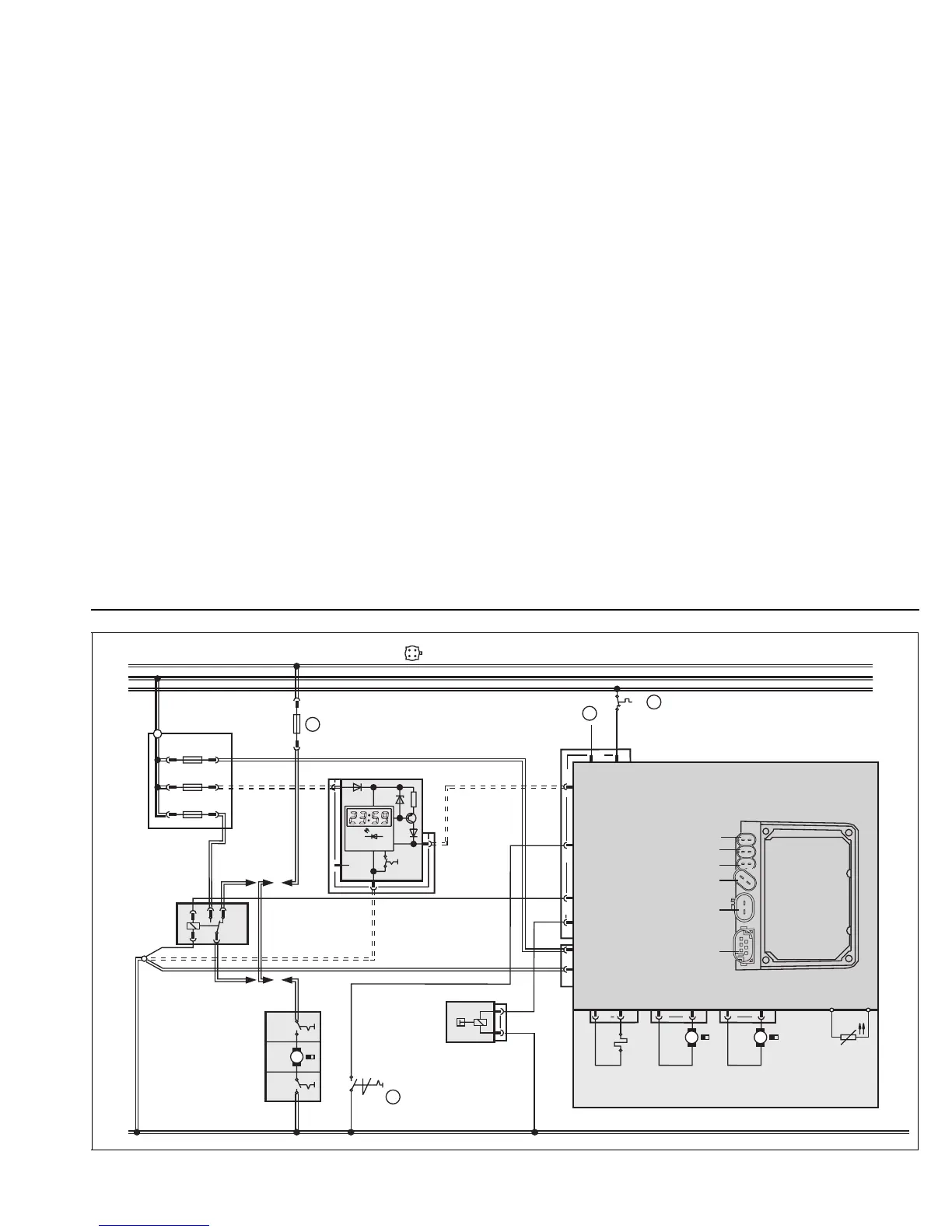
Bild 17: Automatikschaltung für Thermo Top C und E, 12V Vorwahluhr (Legende siehe Seite 20)
M
M M
(75) 15
61
30
rt
sw
br
br
br
vi
sw
sw
ge
bl
87a
85
86
87
30
31
br
I max. = 0,5 A
gn/ws
rt
rt
rt
rt
br
br
5
3
2
1
2
1
4
6
22
11
ϑ
ϑ
1
2
Y1
B2
A1
X1
F2
F1
F3
K3
M1 M2
X4 X5
A2
X2
A3
X3
E
M3
S2
S1
Heizen
Lüften
1
2
3
4
S5
6
4
1
2
3
5
1
2
1
2
1
1
1
2
2
2
X1
X2
X3
X5
X6
A
B
C
X4
-
+
OUT
+15
P
X9
X9
H1

Related product manuals