EasyManua.ls Logo

Weber Summit S-460 - Page 134

Weber Summit S-460
215 pages
Print Icon
To Next Page IconTo Next Page
To Next Page IconTo Next Page
To Previous Page IconTo Previous Page
To Previous Page IconTo Previous Page
Loading...
34
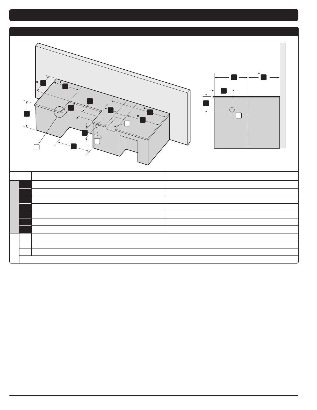
DIMENSIONES DETALLADAS DEL CORTE PARA BARBACOAS EMPOTRADAS - INSTALACIÓN ADYACENTE A UNA ESTRUCTURA
2
3
4
5
6
7
a
c
1
b
2
5 1
3
1
1
1
b
460 660
DIMENSIONES
*1
24" mínimo* (610 mm) 24" mínimo* (610 mm)
2
16
1
2" (419 mm) 16
1
2" (419 mm)
3 11
1
8" (283 mm) 11
1
8" (283 mm)
4 10
1
2" (267 mm) mínimo 10
1
2" (267 mm) mínimo
5 24
5
16" (618 mm) 24
5
16" (618 mm)
6 36" (914 mm) máximo 36" (914 mm) máximo
7 34" (864 mm) bastidor empotrado 42" (1067 mm) bastidor empotrado
a
Para el tratamiento de la encimera: se recomienda un saliente de
3
4" (19 mm)
b Entrada de gas
c Abertura del quemador lateral
*El espacio libre entre cualquier superficie o estructura y la parte posterior y los lados de la barbacoa o el quemador lateral es de por lo menos 24” (610 mm).
DIMENSIONES DEL CORTE DEL EMPOTRAMIENTO

Other manuals for Weber Summit S-460

Related product manuals