EasyManua.ls Logo

Wega NOVA Series - EPU Version Wiring Diagram

Wega NOVA Series
68 pages
Print Icon
To Next Page IconTo Next Page
To Next Page IconTo Next Page
To Previous Page IconTo Previous Page
To Previous Page IconTo Previous Page
Loading...
49 of 68
TECHNICIANS manual
ENGLISH
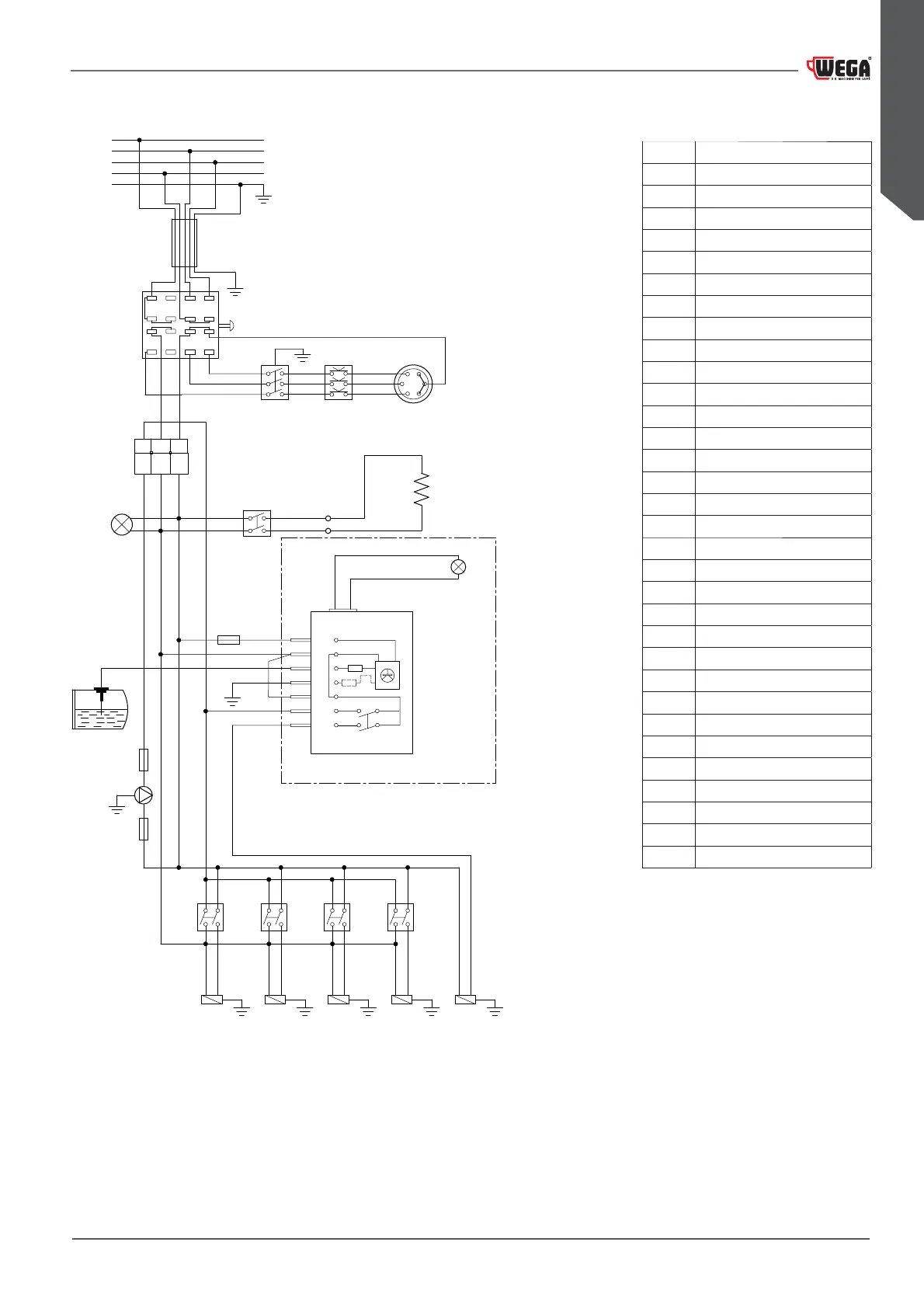
14.6 EPU version
LED
BI
FU
RO
NE
GV
1
2
4
6
8
9
10
RL30
CAL
SL
MP
EV1
GV
EV2
GV
EV3
GV
EV4
GV GV
EVC
IM1 IM2 IM3
IM4
BI
BI BI BI
BI BI BI BIRO RO RO RO NEBI
13 9 5
1
3
71115
16 12 8
4
2
610
14
FP1
FP2
SCT
IST
LA
CT
PR
SA
CO
RE
400V
R
S
T
N
MA
BL NE GR GV
CAB
MA
BL
BI
White
BL Blue
CAB Power cable
CAL Boiler
CO Power switch
CT Supply connector
EV1 Solenoid valve GR1
EV2 Solenoid valve GR2
EV3 Solenoid valve GR3
EV4 Solenoid valve GR4
EVC Boiler lling solenoid valve
FP1(*) UL (OPD) Motor pump fuse
FP2(*) UL (OPD) Fuse for 230V
FU Fuse
GR Grey
GV Yellow-green
IM1 GR1 switch
IM2 GR2 switch
IM3 GR3 switch
IM4 GR4 switch
IST Cup heater switch
LA Indicator light
LED LED Timeout
MA Brown
MP Motor pump
NE Black
PR Pressure switch
RE Resistance
RO Red
RL30 AEA control unit (optional)
SA Resistance safety device
SL Boiler level probe
VE Green
(
*
) Fuses for UL versions with plug with a greater
capacity than 30A

Table of Contents

Related product manuals