EasyManua.ls Logo

Wega NOVA Series - EMA-EPU Dispensing Group Hydraulic Diagram

Wega NOVA Series
68 pages
Print Icon
To Next Page IconTo Next Page
To Next Page IconTo Next Page
To Previous Page IconTo Previous Page
To Previous Page IconTo Previous Page
Loading...
64 of 68
TECHNICIANS manual
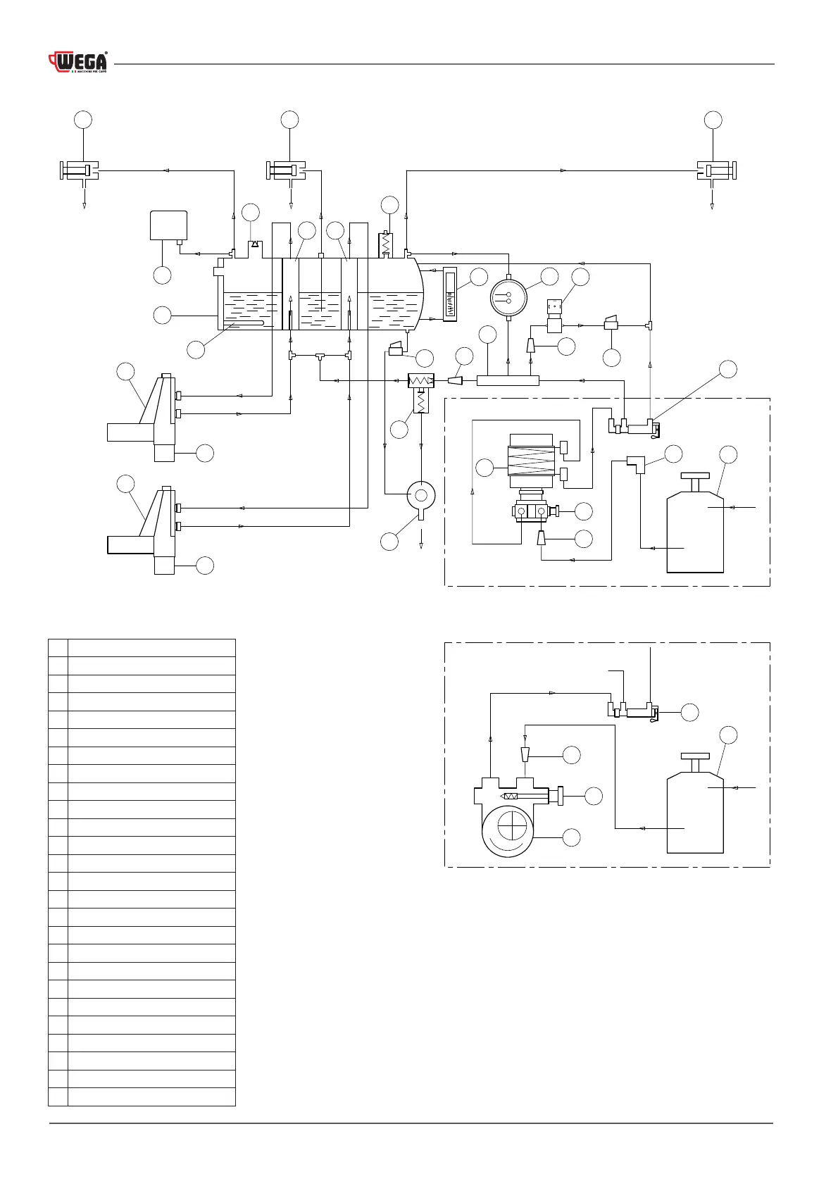
15.2 EMA - EPU DISPENSING GROUP hydraulic diagram
Internal motor pump
External motor pump
14
10
16
14
19
11
S
3
4
2
22
17
21
8
5
1
E
1
5
4
2
23
E
13
17
2
20
24
7
6
9
2
15
11
18
12
18
12
1 Water softener
2 Water inlet lter
3 Built-in motor pump
4 Pump pressure adjustment
5 Manual water entry tap
6 SCNR valve
7 Discharge tub
8 Pressure gauge
9 Optical level
10 Boiler
11 Heat exchanger
12 Dispensing group
13 Hot water tap
14 Steam cock
15 Safety valve
16 Negative pressure valve
17 Boiler drain tap
18 Group solenoid valve
19 Pressure switch
20 Automatic Water Entry Solenoid Valve
21 Water inlet connection
22 Water dispenser
23 External motor pump
24 Boiler heating element
E Water inlet
S Drain

Table of Contents

Related product manuals