EasyManua.ls Logo

Wen DF1100 - WIRING DIAGRAM; Generator Wiring Schematic

Wen DF1100
40 pages
Print Icon
To Next Page IconTo Next Page
To Next Page IconTo Next Page
To Previous Page IconTo Previous Page
To Previous Page IconTo Previous Page
Loading...
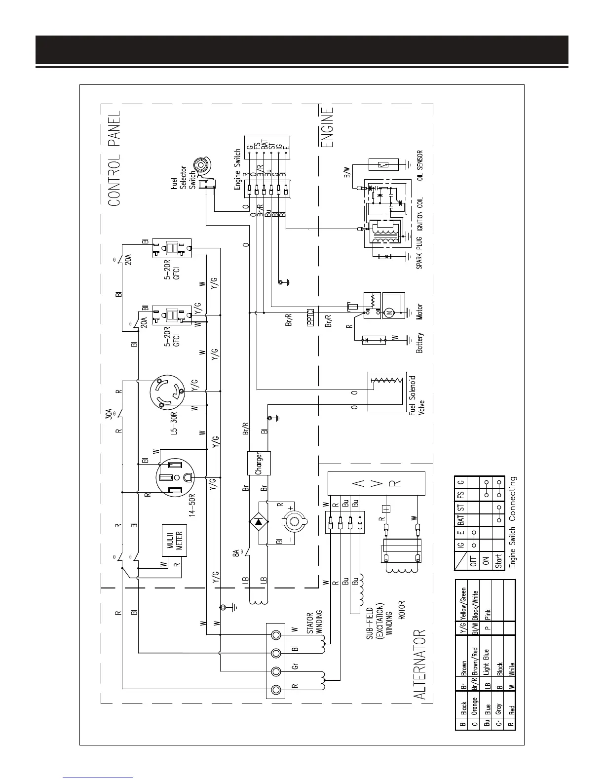
WIRING DIAGRAM
38
35A
35A

Related product manuals