EasyManua.ls Logo

Westinghouse 080 - Part 9 - Replacement Parts

Westinghouse 080
20 pages
Print Icon
To Next Page IconTo Next Page
To Next Page IconTo Next Page
To Previous Page IconTo Previous Page
To Previous Page IconTo Previous Page
Loading...
whl-647 Rev. 000 Rel. 000 Date 11.1.17
17
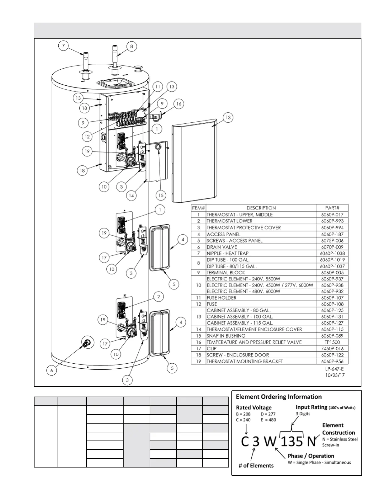
Figure 15 - Replacement Parts
Table 8 - Element Kit Part Numbers
Part 9 - Replacement Parts
Gallons # Elements Simultaneous 208 240 277 480
80,
100,
115
3
12,500 B3W125N NO
NO
NO
13,500 B3W135N C3W135N E3W135N
14,000
NO
NO D3W140N NO
15,000 C3W150N D3W150N E3W150N
16,000 NO D3W160N NO
16,500 C3W165N NO E3W165N
18,000 NO D3W180N E3W180N

Related product manuals