EasyManua.ls Logo

Westinghouse 080 - Water Chemistry Requirements

Westinghouse 080
20 pages
Print Icon
To Next Page IconTo Next Page
To Next Page IconTo Next Page
To Previous Page IconTo Previous Page
To Previous Page IconTo Previous Page
Loading...
whl-647 Rev. 000 Rel. 000 Date 11.1.17
5
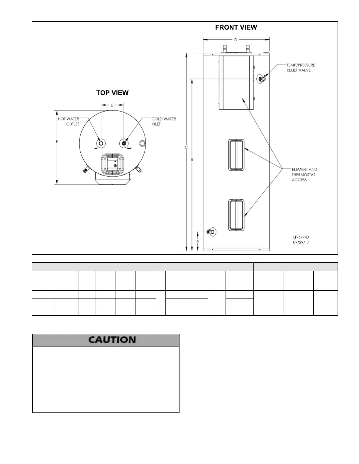
TOP VIEW
FRONT VIEW
Specications and Dimensions Water Temperature Ratings
Models
Storage
Capacity
A B C D E F
Hot /
Cold
Inlets
Shipping
Weight
(Lbs. Est.)
Min.
Delivered
Temp.
Max.
Delivered
Temp.
High
Temp.
Limit
080 80 6 1/2” 60” 69” 23 1/4”
8”
26”
3/4”
NPT
165
135
o
F
(57.2 C)
181
o
F
(82.8 C)
200
o
F
(93.3 C)
100 100
7 1/4”
52” 61”
27” 30”
220
115 115 60” 69”
240
Table 2 - Specications and Dimensions - See Table 3 for a List of Available Elements
Figure 2 - Dimensional Drawing
C. Water Chemistry Requirements
Chemical imbalance of the water supply may aect eciency and
cause severe damage to the appliance and associated equipment.
Water quality must be professionally analyzed to determine
whether it is necessary to treat the water. Various solutions are
available to adjust water quality. Adverse water quality will aect
the reliability of the system. In addition, operating temperatures
above 135
o
F will accelerate the build-up of lime scale and possibly
shorten appliance service life. Failure of an appliance due to
lime scale build-up, low pH, or other chemical imbalance IS NOT
covered by the warranty.
The water must be potable, free of corrosive chemicals, sand, dirt,
and other contaminates. It is up to the installer to ensure the water
does not contain corrosive chemicals or elements that can damage
the heat exchanger. Potable water is dened as drinkable water
supplied from utility or well water in compliance with EPA secondary
maximum contaminant levels (40 CFR Part 143.3). If the water contains
contaminants higher than outlined by the EPA, water treatment is
recommended and additional, more frequent maintenance may be
required.
If you suspect that your water is contaminated in any way, discontinue
use of the appliance and contact an authorized technician or licensed
professional.
Water pH between 6.5 and 8.5
pH levels below 6.5 can cause an increase in the rate of
corrosion. pH of 8.5 or higher can potentially cause lime
scale build-up
Maintain water pH between 6.5 and 8.5. Check with litmus
paper or have it chemically analyzed by a local water
treatment company.
If the pH is not between 6.5 and 8.5, consult a local water
treatment company for solutions.

Related product manuals