EasyManua.ls Logo

Whirlpool ADN503 - Analogic Oven Starting; Analogic Control Panel Components

Whirlpool ADN503
34 pages
Print Icon
To Next Page IconTo Next Page
To Next Page IconTo Next Page
To Previous Page IconTo Previous Page
To Previous Page IconTo Previous Page
Loading...
ISTRUZIONI PER L’INSTALLATORE
INSTRUCTIONS FOR THE INSTALLER
ANLEITUNGEN FÜR DEN INSTALLATEUR
NOTICE POUR L'INSTALLATEUR
INSTRUCCIONES PARA EL INSTALADOR
COMPACT Combi Direct 7 / 11 x 1/1GN 7 / 11 x 2/1GN
4
no. 07 x 1/1GN Gas
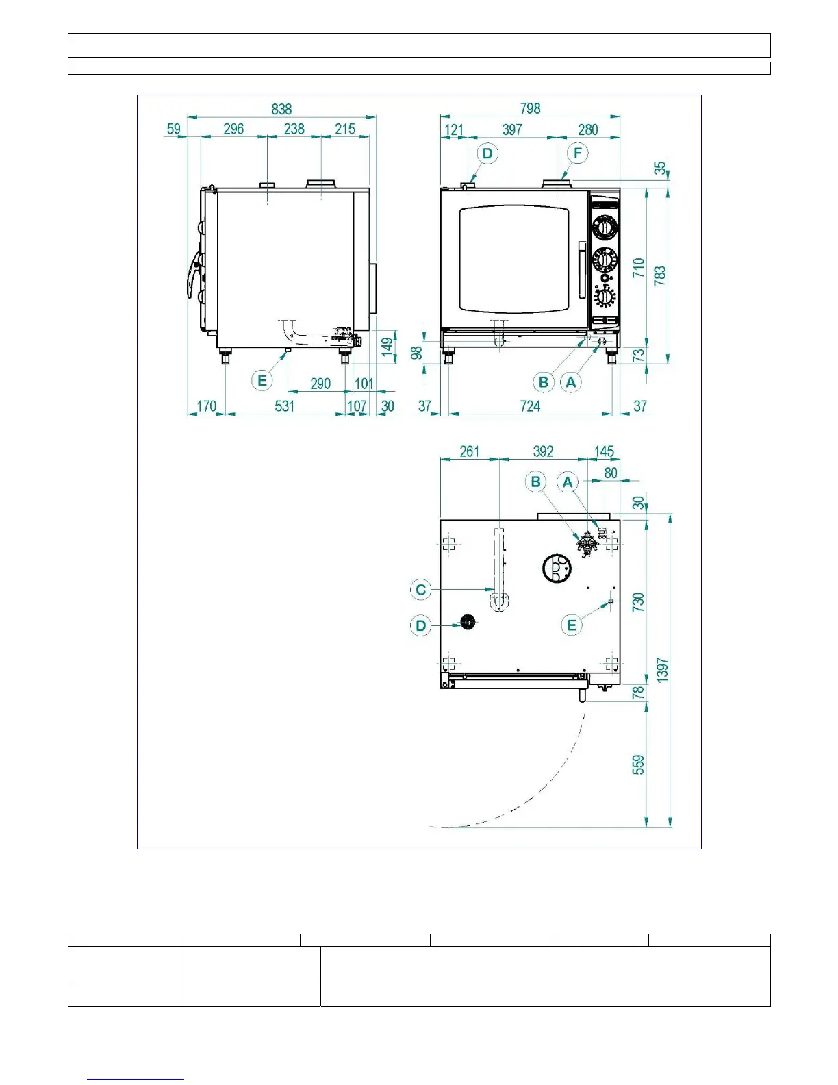
1.3A DIMENSIONI
1.3A DIMENSIONS
1.3A ABMESSUNGEN
1.3A DIMENSIONS
1.3A MEDIDAS
Modelli Modèles Dimensioni Dimensions Capacità e distanza (passo) tra le teglie Capacité et écart entre les grilles
Models Modelos Dimensions Medidas Capacity and distance between trays Capacidad y distancia (paso) entre las fuentes
Modelle Abmessungen Fassungsvermögen und Abstand der Bleche
07 x 1/1GN
14 x 1/2GN
Gas cm 80 x 84 x h82
n°07 x 1/1 GASTRO NORM
n°14 x 1/2 GASTRO NORM
67 mm
A
Connessione elettrica
Electrical connection
Elektroanschluss
Branchement électrique
Conexión eléctrica
B Entrata acqua φ 3/4
Water inlet
φ
3/4”
Wasserzufuhr φ 3/4”
Arrivée eau
φ
3/4
Entrada agua φ 3/4
C Scarico camera cottura φ 50mm
Water drainage
φ
50mm
Wasserablauf φ 50mm
Vidange eau
φ
50mm
Desagüe φ 50mm.
D Sfiato camera cottura φ 60mm
Cooking chamber relief valve
φ
60mm
Ablaßventil Garraum φ 60mm
Event chambre de cuisson
φ
60mm
Desagüe camara coccion
φ 60mm
E Entrata gas φ 1/2
1/2“ coupling gas inlet
Gaszufuhr φ 1/2“
Arrivée gaz
φ
1/2“
Entrada gas φ 1/2“
F Scarico fumi combustione φ 120mm
φ
120 mm fumes discharge
Abgasleitung φ 120mm.
Évacuation fumées brûlées
φ
120 mm
Descarga humo
φ 120mm

Other manuals for Whirlpool ADN503

Related product manuals