EasyManua.ls Logo

Winpower DE20I4 - Ac Wiring - Single Phase; 120;240 Volt

Winpower DE20I4
28 pages
Print Icon
To Next Page IconTo Next Page
To Next Page IconTo Next Page
To Previous Page IconTo Previous Page
To Previous Page IconTo Previous Page
Loading...
60708-162
4094-00
22
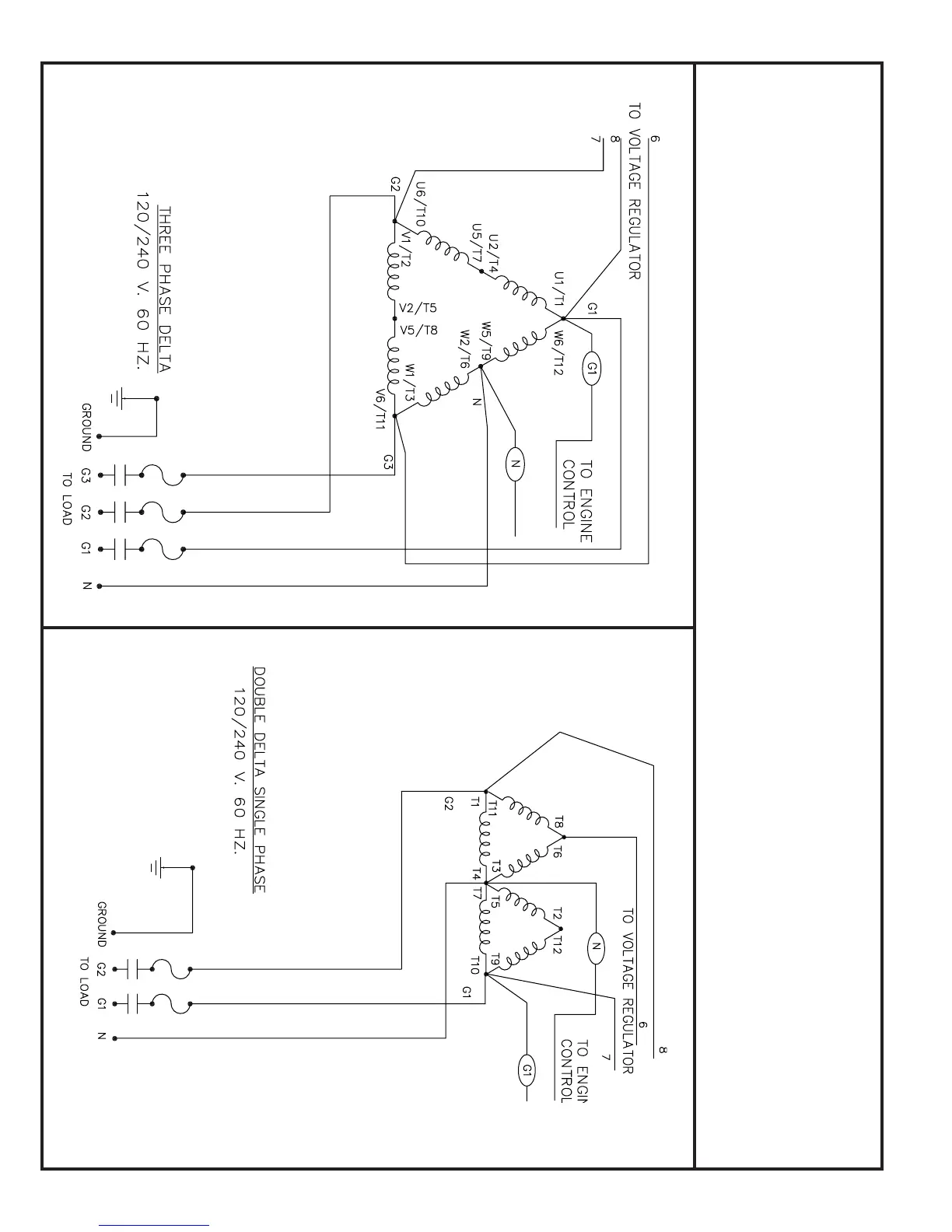
THREE PHASE AC WIRING-DELTA
SINGLE PHASE AC WIRING