EasyManua.ls Logo

Winpower DE20I4 - Engine Replacemnt Parts. 23; Remote Start Wiring

Winpower DE20I4
28 pages
Print Icon
To Next Page IconTo Next Page
To Next Page IconTo Next Page
To Previous Page IconTo Previous Page
To Previous Page IconTo Previous Page
Loading...
4094-00
60708-162
25
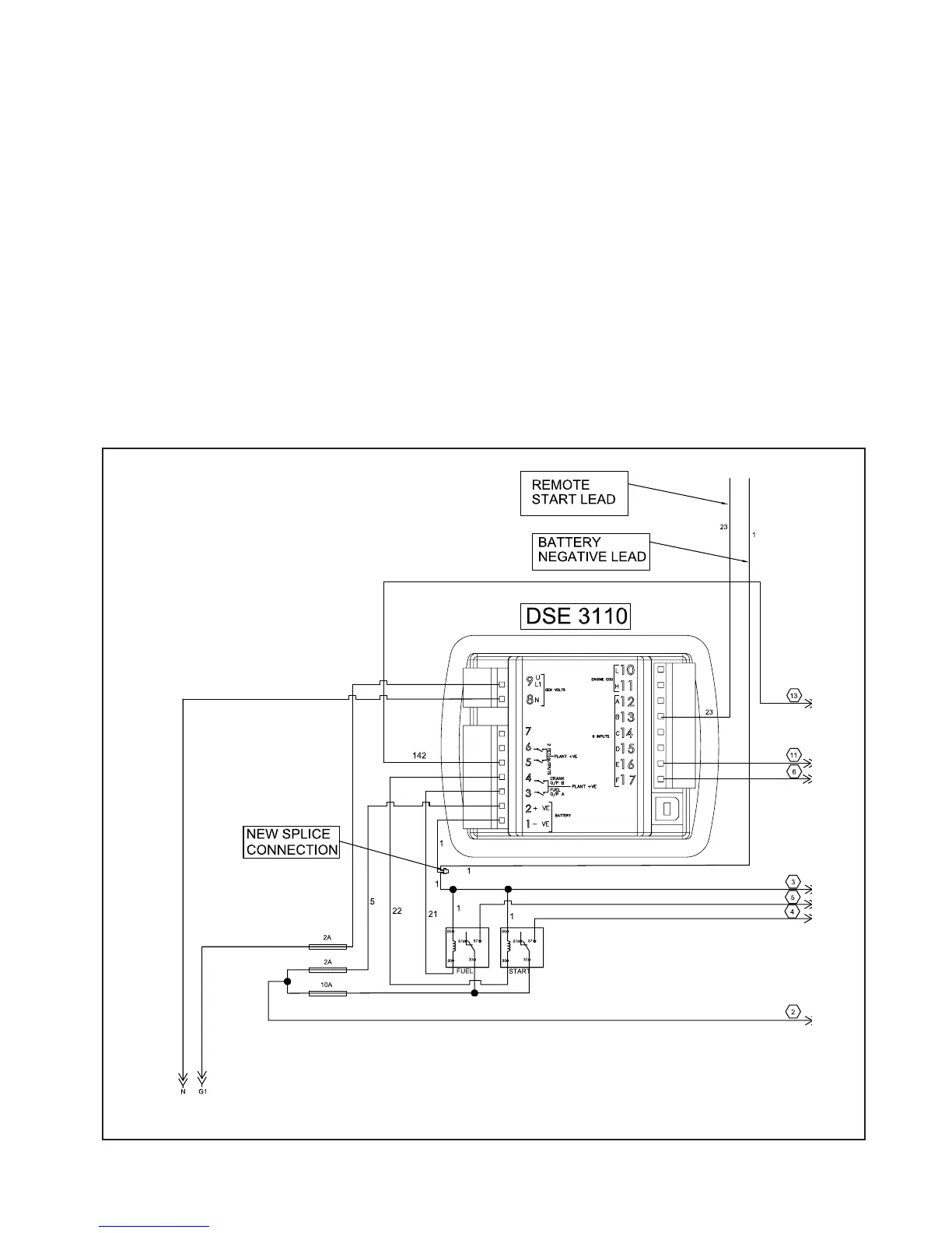
REWIRING THE DE SERIES GENERATOR FOR REMOTE START
The DE Series generators equipped with the DES 3110 control-
lers can be rewired for remote start. These will make them com-
patible with a standard two wire start Automatic Transfer Switch.
Rewire procedures:
1. Remove the top cover on the generator connection
box.
2. Remove the screws holding the panel containing the
DSE 3110 control and tip it down.
3. Unplug the eight pin green connector containing
terminal #13,
4. Install a control wire to be routed to the automatic trans-
fer switch in position #13 and label this wire #23 and plug the
connector back into the DSE 3110.
5. Unplug the seven green pin connector containing
terminal #1.
6. Position #1 already has a wire in it. You will have to cut
that wire and splice a new wire into the existing one. Use a
good crimp splice connection, do not use wire nuts. Label
this wire #1 and plug the connector back into the DSE 3110.
These two wires are your remote start leads (wire #23 & #1) that
must be routed to your Automatic Transfer Switch or what ever
device you are using to activate the remote start. With the DSE
3110 in the “AUTO” position a relay closure across these two lead
will activate the automatic start function in the DSE 3110. As long
as the relay stays closed the unit will continue to run. Once the
relay is open and contact between lead #23 and #1 is broken the
unit will shutdown.