EasyManua.ls Logo

Wolf DF30 - Page 104

Wolf DF30
108 pages
Print Icon
To Next Page IconTo Next Page
To Next Page IconTo Next Page
To Previous Page IconTo Previous Page
To Previous Page IconTo Previous Page
Loading...
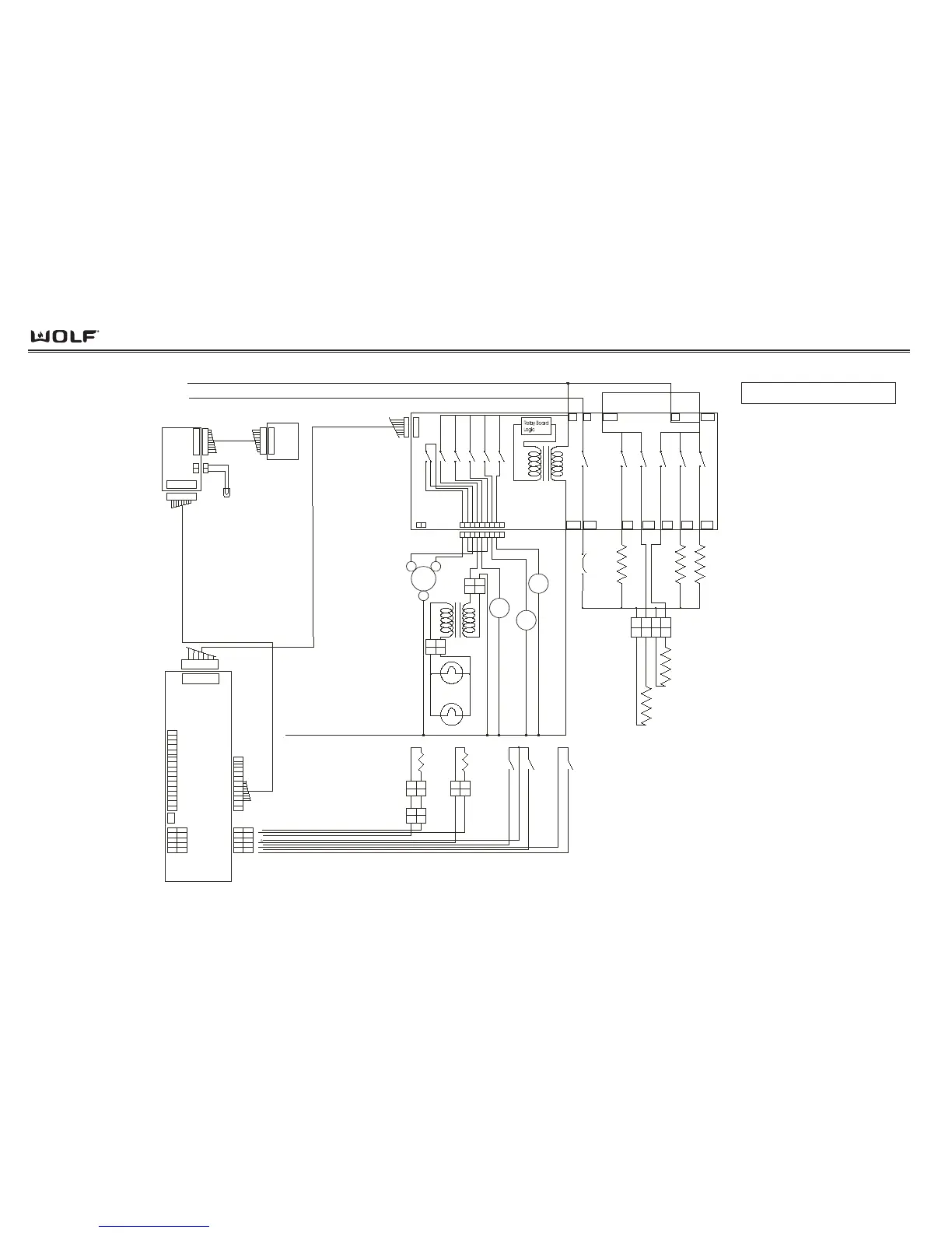
Wiring Diagrams
DDuuaall FFuueell RRaannggee
7-24
L1
L2
Oven
Relay
Board
K1
NO
K2
NO
K3K4K5
NO
NONO
K7
NO
K14
1
22
1
22
12
3
45
6
78
9
1
1234
Molex S abre
Connector
Outer B ake El.
1000W
240V
Inner Bake El.
1200W
240V
30" B roil El.
3600W
240V
R Cvt El.
2400W
240V
L Cvt El
2400W
240V
Bi-metal
Thermal
cu to ut
1
LO
W
H
I
Cooling
Fan Motor
L.Cvt
Fan
R. Cvt
Fan
Motor
Door
Lock
20W Oven
Light
20W Oven
Light
NEUT RAL
1
1
22
22
1
3
19
1
2
3
4
5
6
7
8
9
1
2
3
4
5
6
8
9
7
1
2
3
4
4
5
6
8
9
10
1
2
3
4
5
6
8
9
10
1
6
10
2
9
5
8
12
Meat
Probe
Sensor
Meat
Probe
R ecept ical
J2
RTD
Sensor
12
Molex
Connector
12
21
Amp
Connector
MDL
Unlatched
Switch
MDL
Latched
Switch
Door
Switch
1 2
12
2 pin
Amp Conn.
2 pin
Amp
Conn
1
1
2
2
1234
Oven
Sensors
L1L1 L2 L1-B L1-A
Oven
Controller
Dual
Fuel
Display
Pod
NEU
DLB
Pr5 Pr4 Pr3 Pr2 Pr1
J11A
J11B
J4
J1
NO NO NO
K9
K10
K11K12K13
N
O
N
O
N
O
N
O
N
O
N
O
12345
6
789
J3J2
2
12
12
LED Indicator
light
19
110
110
Mode/temp
knob
110
110
36" B roil El.
4000W
240V
Dual Fuel Oven
Model DF30 and DF36
Schematic Diagram
SWS 16000000

Table of Contents

Related product manuals