EasyManua.ls Logo

Wolf DF30 - Page 105

Wolf DF30
108 pages
Print Icon
To Next Page IconTo Next Page
To Next Page IconTo Next Page
To Previous Page IconTo Previous Page
To Previous Page IconTo Previous Page
Loading...
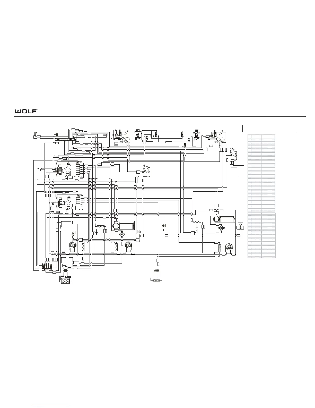
Wiring Diagrams
DDuuaall FFuueell RRaannggeess
7-25
W olf A ppl i ance Company, L L C
48 Dual F uel Oven
Wiring Diagram
W olf P N 807012 R evison A
Models
DF486C, DF 486-L P , DF 486G, DF486-L P ,
DF484CG, DF 484CG-L P , DF484DG, DF 484DG-
L P , DF 484DC, DF 484DC-L P , DF484F , DF 484F -
LP
L2 Splice
Right Convection
Element
Broil Element
Left Convection
Element
234
321
1
1
12
2
Terminal
Block
LOHI
AMP
CONNECTOR
Mates with
Rangetop
1
3
L2 splice
1
12
2
L
i
g
h
t
Tra
nsformer
11
11
2
22
2
Light
T
ra
nsformer
11
11
2
22
2
Relay Board
1
12
2
Unlatched
Switch
Latched
Switch
Door
Switch
Mot or D oor
Lock
234
321
1
30" Cooling
Fan
1
1
2
2
3
3
1
12
2
U nlatched S witch
Latched
Switch
Door
Switch
Motor Door
Lock
neutral splice
Relay Board
NL2L1
ECH Assembly (Pod)
LOHI
Oven Contr oller
Board
1
6
1
6
18" Cooling
Fan
1
1
2
2
3
3
75
2
1
3
4
5
61
62
63
64
65
70
69
68
66
10
9
8
6
OC to Pod
67
7
15
14
30
21
19
22
23
20
18
13
67
53
71
73
74
77
72
8480
79
82
81
39
41
18
48 49
36
37
43
44
45
46
51
26
27
42
fuse
fuse
28
40
49 17
36
37
34
35
91
90
91
90
8577
52
94
56
52
57
11
20
31
33
32
11
31
13
38
51
40
55
56
57
29
28
26
27
25
29
32
15
5
4
3
10
9
33
14
16
61
62
66
69
63
76
85
71
73
55
82
86
86
94
68
70
88
89
74
87
65
64
89
88
35
34
22
42
8
6
79
53
19
30
83
41
21
81
39
48
38
20
83
12
17
25
OC to Pod
Pod to Knob
Pod to Knob
2V LED 2V LED
Manual Reset
Bi-metal Thermostat
(Thermo - Limiter)
Manual Reset
Bi-metal Thermostat
(Thermo - Limiter)
Left
Convection
Fan
Right
Convection
Fan
RTD
Bake
Element
Right
Oven
Light
Meat Probe
Receptacle
Temperature
Knob and
Selector Switch
Temperature Knob and
Selector Switch
Right
Oven
Light
RTD
Broil Element
Convection
Element
Convection
Element
Left
Oven
Light
WIRE WIRE COLOR INFO
1GRAY MP
2 GRAY/BLACK DST MP-
3 BROWN/BLACK DST MN
4BROWN MU
5PURPLE ML
6TAN RTD
7 BLACK RB TO OC (22 WIRES)
8 TAN/BLACK DST RTD-
9 YELLOW DS
10
YELLOW/BLACK DST
DS-
11 BLACK/WH DST HF
12 BLACK RB JUMPER
13 LT BLUE LF
14 BLACK/WHITE HA TRANS
15 GRAY/BLACK HA MDL
16 PURPLE/BLACK DST MN JUMPER
17 ORANGE LCF
18 BLUE RCF
19 BLACK L1 LOGIC
20 WHITE N LOGIC
21 RED L2
22 RED DLB TO TCO
23 BLACK L1 JUMPER
25 BLACK/BLUE DST RCE
26 BLACK/GREEN DST O BAKE
27
BLACK/YELLOW DST
I BAKE
28
BLACK/ORANGE DST
LCE
29 BLACK/RED DST BROIL
30 BLACK L1 RELAYS
31 WHITE N SPLICE TO COOL FAN N
32 WHITE SPLICE TO TRANS N
33 WHITE SPLICE TO MDL N
34 RED TRANS TO LIGHT
35 BLUE TRANS TO LIGHT FUSE
36 RED LIGHT TO LIGHT
37 BLUE LIGHT TO LIGHT 2
38 WHITE COOL FAN N
39 RED RANGE TOP L2
40 RED L2 JUMPER
41 WHITE RANGETOP N
42 RED TCO TO SPLICE L2
43 RED SPLICE TO SPLICE L2
44 RED SPLICE TO SABER 2 L2
45 RED SPLICE TO SABER 4 L2
46 RED SPLICE TO RCE L2
48 WHITE RCF N
49 WHITE LCF N
51 RED BROIL L2
52 RED LCE L2
53 BLACK L1 RELAYS
54 BLACK L1 JUMPER
55 BLACK/RED CK BROIL
56 BLACK/ORANGE CK LCE
57 BLACK/YELLOW CK I BAKE
18" Bake
Element
75
84
Meat Probe
Receptacle
61 TAN/BLACK CK MP
62 TAN/BLACK SP MP-
63 BROWN/BLACK SP MN
64 BROWN/BLACK CK MU
65 PURPLE/BLACK CK ML
66 TAN/ BLACK CK DS
67 WHITE RB TO OC
68 YELLOW CK RTD
69 TAN/ BLACK SP DS
70 YELLOW SP RTD
71 BROWN/GRAY ST HF
72 BLACK RB JUMPER
73 LT BLUE/BLACK ST LF
74 BLACK/GRAY ST TRANS
75 BLACK/GRAY CK MDL
76 PURPLE/BLACK SP MN JUMPER
77 ORANGE/BLACK CK LCF
78 BLUE/BLACK SP RCF
79 BLACK L1 LOGIC
80 WHITE N LOGIC
81 RED L2
82 RED DLB TO TCO
83 WHITE COOL FAN N
84 WHITE MDL N
85 WHITE RCF N
86 RED TCO TO SPLICE L2
87 W HITE TRANS N
88 BLUE TRANS TO LIGHT
89 RED TRANS TO LIGHT FUSE
90 BLUE LIGHT TO LIGHT
91 RED LIGHT TO LIGHT 2
92 RED SPLICE TO SABRE 4 L2
94 RED L2 JUMPER
SWS 16000000

Table of Contents

Related product manuals