EasyManua.ls Logo

Wolf DF30 - Page 106

Wolf DF30
108 pages
Print Icon
To Next Page IconTo Next Page
To Next Page IconTo Next Page
To Previous Page IconTo Previous Page
To Previous Page IconTo Previous Page
Loading...
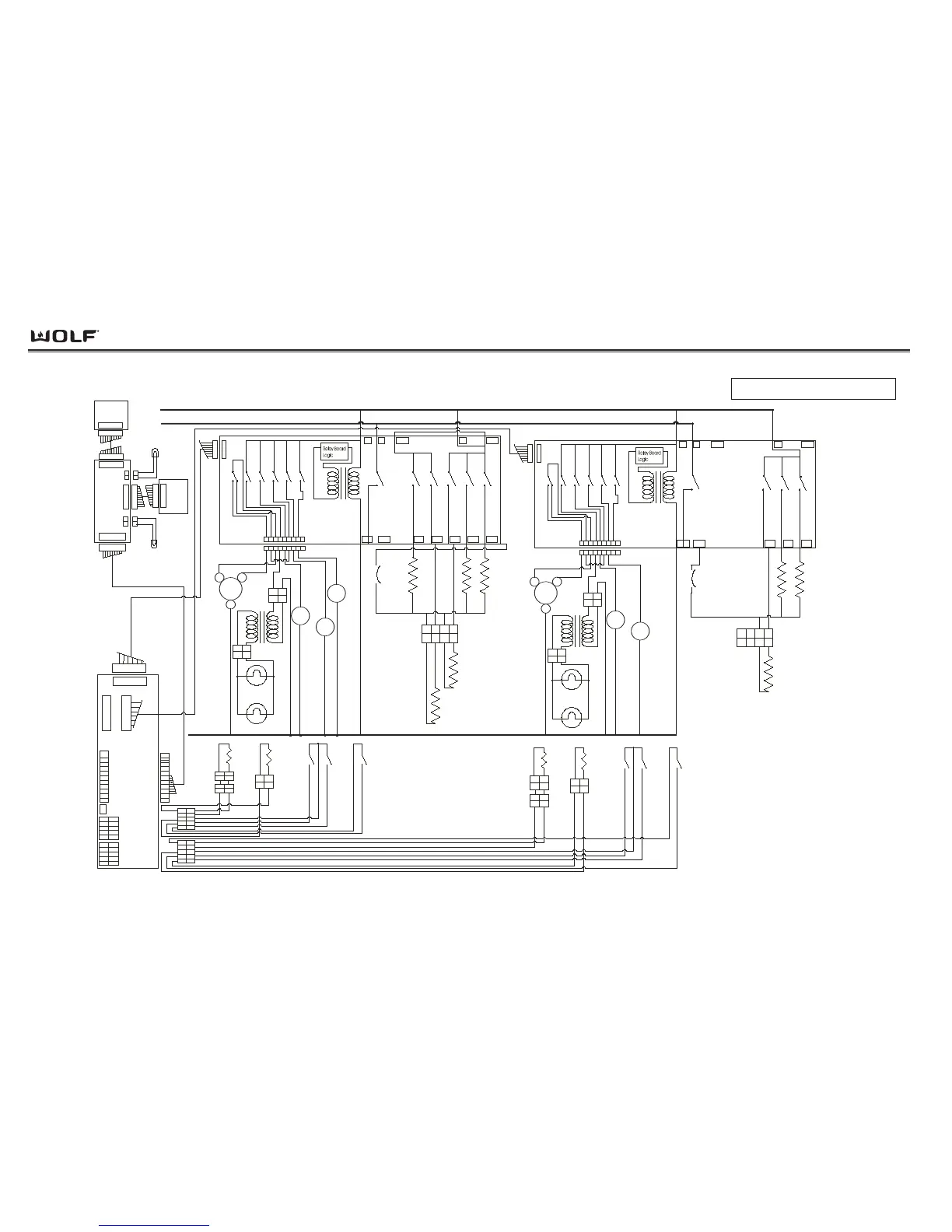
Wiring Diagrams
DDuuaall FFuueell RRaannggee
7-26
L1
L2
30" Oven
Relay
Board
K1
NO
K2
NO
K3K4K5
NO
NO
NO
K7
NO
K14
1
22
1
22
12
3
45
6
78
9
1234
Mol ex S abr e
Connector
Outer B ak e El .
1000W
240V
Inner Bake E l.
1200W
240V
Br oil El.
3600W
240V
R Cvt El.
2400W
240V
L Cvt El
2400W
240V
Bi-metal
Thermostat
(T hermo
Limiter)
1
4
2
Cooling
Fan Motor
L.Cvt
Fan
R. Cvt
Fan
Motor
Door
Lock
20W Oven
Light
20W Oven
Light
NEU T R AL
122
1
2
3
4
5
6
7
8
9
12
Meat
Probe
Sensor
Meat
Probe
R ecept ical
RTD
Sensor
12
Molex
Connector
Amp
Connector
MDL
Unlatched
Switch
MDL
Latched
Switch
Door
Switch
12
12
2 pin
Amp Conn.
2 pin
Amp
Conn
1
1
2
2
1234
L1L1 L2 L1-B L1-A
NEU DLB P r5 Pr4 P r3 Pr2 Pr1
J11A
J4
J1
NO NO NO
K9K10K11
K12
K13
NONONONONO
NO
12345
6
789
J
3
2V LE D
Right
Mode/temp
knob
ECH
Assembly
12
12
110
110
110
110
Left
Mode/temp
knob
12
12
J1
J8
J7
J2
2V LE D
J6
110
110
110
110
1
2
3
4
5
6
8
9
7
19
19
1
2
3
4
5
6
8
9
10
J2
1
2
3
4
5
6
8
9
10
J3
1
2
3
4
9
5
6
8
10
1
2
3
4
9
5
6
8
10
12
2
1
18" Oven
Relay
Board
K1
NO
K2
NO
K3
NO
K7
NO
K14
1
22
1
22
12
3
45
6
78
9
1234
Molex S abr e
Connector
Inner Bake E l.
1450W
240V
Br oil El.
3600W
240V
L Cvt El
2400W
240V
1
4
2
Cooling
Fan Motor
L.Cvt
Fan
Motor
Door
Lock
20W Oven
Light
20W Oven
Light
12
Meat
Probe
Sensor
Meat
Probe
R ecept ical
RTD
Sensor
12
Molex
Connector
Amp
Connector
MDL
Unlatched
Switch
MDL
Latched
Switch
Door
Switch
12
12
2 pin
Amp Conn.
2 pin
Amp
Conn
1
1
2
2
1234
W olf A ppl i ance
Company, LLC
48 Dual F uel Oven
Schematic Diagram
L1L1 L2 L1-B L1-A
NEU DLB Pr3 Pr2 Pr1
J1
NO NO NO
K9K10K11K12K13
NONONONONO
NO
12345
6
789
J3
12
2
1
122
J5
122
122
Oven
Controller
Bi-metal
Thermostat
(T hermo Limiter)
SWS 16000000

Table of Contents

Related product manuals