EasyManua.ls Logo

Wolf DF30 - Page 107

Wolf DF30
108 pages
Print Icon
To Next Page IconTo Next Page
To Next Page IconTo Next Page
To Previous Page IconTo Previous Page
To Previous Page IconTo Previous Page
Loading...
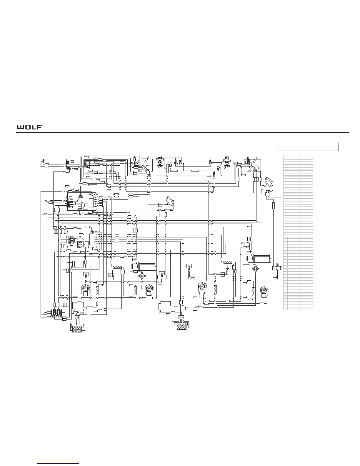
Wiring Diagrams
DDuuaall FFuueell RRaannggeess
7-27
W olf A ppl i ance Company, L L C
60 Dual F uel Oven
Wiring Diagram
W olf P N 807013 R evis on A
MODE L S : DF606CG, DF 606CG-L P , DF604CF,
DF604CF-L P , DF 604GF , DF604GF-L P , DF606DC,
DF606DC-L P , DF606DG, DF 606DG-L P , DF 606F ,
DF606F-L P
L2 Splice
Right Convection
Element
Broil Element
Left Convection
Element
234
321
1
1
12
2
Terminal
Block
LOHI
AMP
CONNECTOR
Mates with
Rangetop
1
3
L2 splice
1
12
2
L
igh
t
Tran
sformer
11
11
2
22
2
Light
T
ra
nsformer
11
11
2
22
2
Relay Board
1
12
2
Unlatched
Switch
Latched
Switch
Door
Switch
Mot or D oor
Lock
234
321
1
Cooling Fan
1
1
2
2
3
3
1
12
2
U nlatched S witch
Latched
Switch
Door
Switch
Motor Door
Lock
neutral splice
Relay Board
NL2L1
ECH Assembly (Pod)
LOHI
Oven Cont roll er
Board
1
6
1
6
Cool ing F an
1
1
2
2
3
3
75
2
1
3
4
5
61
62
63
64
65
70
69
68
66
10
9
8
6
OC to Pod
67
7
15
14
30
21
19
22
23
20
18
13
67
53
71
73
74
77
72
8480
79
82
81
39
41
18
48 49
36
37
43
44
45
46
51
26
27
42
fuse
fuse
28
40
49 17
36
37
34
35
91
90
91
90
56
57
11
20
31
33
32
11
31
13
38
51
40
55
56
57
29
28
26
27
25
29
32
14
5
4
3
10
9
33
15
16
61
62
66
69
63
76
85
71
73
55
82
68
70
88
89
74
87
65
64
89
88
35
34
22
42
8
6
79
53
19
30
83
41
21
81
39
48
38
80
83
12
17
25
OC to Pod
Pod to Knob
Pod to Knob
2V LED 2V LED
Manual Reset
Bi-metal Thermostat
(Thermo - Limiter)
Manual Reset
Bi-metal Thermostat
(Thermo - Limiter)
Left
Convection
Fan
Right
Convection
Fan
RTD
Bake
Element
Right
Oven
Light
Meat Probe
Receptacle
Temperature
Knob and
Selector Switch
Temperature Knob and
Selector Switch
Right
Oven
Light
RTD
Broil Element
Left Convection
Element
Left
Oven
Light
75
84
Meat Probe
Receptacle
78
85
WIRE WIRE COLOR INFO
1GRAY MP
2 GRAY/BLACK DST MP-
3 BROWN/BLACK DST MN
4BROWN MU
5 PURPLE MDL
6TAN RTD
7 BLACK RB TO OC 22 wires
8 TAN/BLACK DST RTD-
9 Y ELLOW DS
10 YELLOW/BLACK DST DS-
11 BLACK/WHITE DST HF
12 BLACK RB JUMPER
13 LT BLUE LF
14 BLACK/WHITE HA TRANS
15 GRAY/BLACK HA MDL
16 PURPLE/BLACK HA MN JUMPER
17 ORANGE LCF
18 BLUE RCF
19 BLACK L1 LOGIC
20 WHITE N LOGIC
21 RED L2
22 RED DLB TO TCO
23 BLACK L1 JUMPER
25 BLACK/BLUE DST RCE
26 BLACK/GREEN DST O BAKE
27 BLACK/YELLOW DST I BAKE
28 BLACK/ORANGE DST LCE
29 BLACK/RED DST BROIL
30 BLACK L1 RELAYS
31 WHITE NEUTRAL
32 WHITE NEUTRAL
33 WHITE NEUTRAL
34 RED TRANS TO LIGHT
35 BLUE TRANS TO LIGHT
36 RED LIGHT TO LIGHT
37 BLUE LIGHT TO LIGHT 2
38 WHITE COOL FAN N
39 RED RANGE TOP L2
40 RED L2
41 WHITE RANGETOP N
42 RED TCO TO SPLICE L2
43 RED L2
44 RED L2
45 RED L2
46 RED L2
48 W HITE RCF N
49 WHITE LCF N
51 RED BROIL L2
53 BLACK L1 RELAYS
54 BLACK L1 JUMPER
55 BLACK/RED HA BROIL
56 BLACK/ORANGE HA LCE
57 BLACK/YELLOW HA I BAKE
58 BLACK/GREEN HA O BAKE
59 BLACK/BLUE HA RCE
61 TAN/BLACK HA MP
62 TAN/BLACK SST MP-
63 BROWN/BLACK SST MN
64 BROWN/BLACK HA MU
65 PURPLE/BLACK HA ML
66 TAN/ BLACK HA RTD
67 WHITE RB TO OC
68 YELLOW HA DS
69 TAN/BLACK SST RTD-
70 YELLOW SST DS-
71 BROWN/GRAY DST LF
72 BLACK RB JUMPER
73 LT BLUE/BLACK DST HF
74 BLACK/GRAY DST TRANS
75 BLACK/GRAY HA MDL
76 PURPLE/BLACK SST MN JUMPER
77 ORANGE/BLACK HA LCF
78 BLUE/BLACK SST RCF
79 BLACK L1 LOGIC
80 WHITE N LOGIC
81 RE D L2
82 RED DLB TO TCO
83 WHITE COOL FAN N
84 WHITE MDL N
85 W HITE RCF N
86 RE D L2
87 W HITE TRANS N
88 BLUE TRANS TO LIGHT
89 RED TRANS TO LIGHT
90 BLUE LIGHT TO LIGHT
91 RED LIGHT TO LIGHT 2
92 RE D L2
93 RE D L2
94 WHITE CVF TO CVF N
95 RE D L2
96 RE D L2
98 RE D L2
99 RE D L2
Right Convection
Element
Right
Convection
Fan
58
L2 splice
L2 Splice
99
77
94
85
94
98
95
93
92
78
96
86
86
96
58
59
54
98
99
59
Left
Convection
Fan
Left
Oven
Light
Bake
Element
SWS 16000000

Table of Contents

Related product manuals