EasyManua.ls Logo

Wolf DF30 - Page 108

Wolf DF30
108 pages
Print Icon
To Previous Page IconTo Previous Page
To Previous Page IconTo Previous Page
Loading...
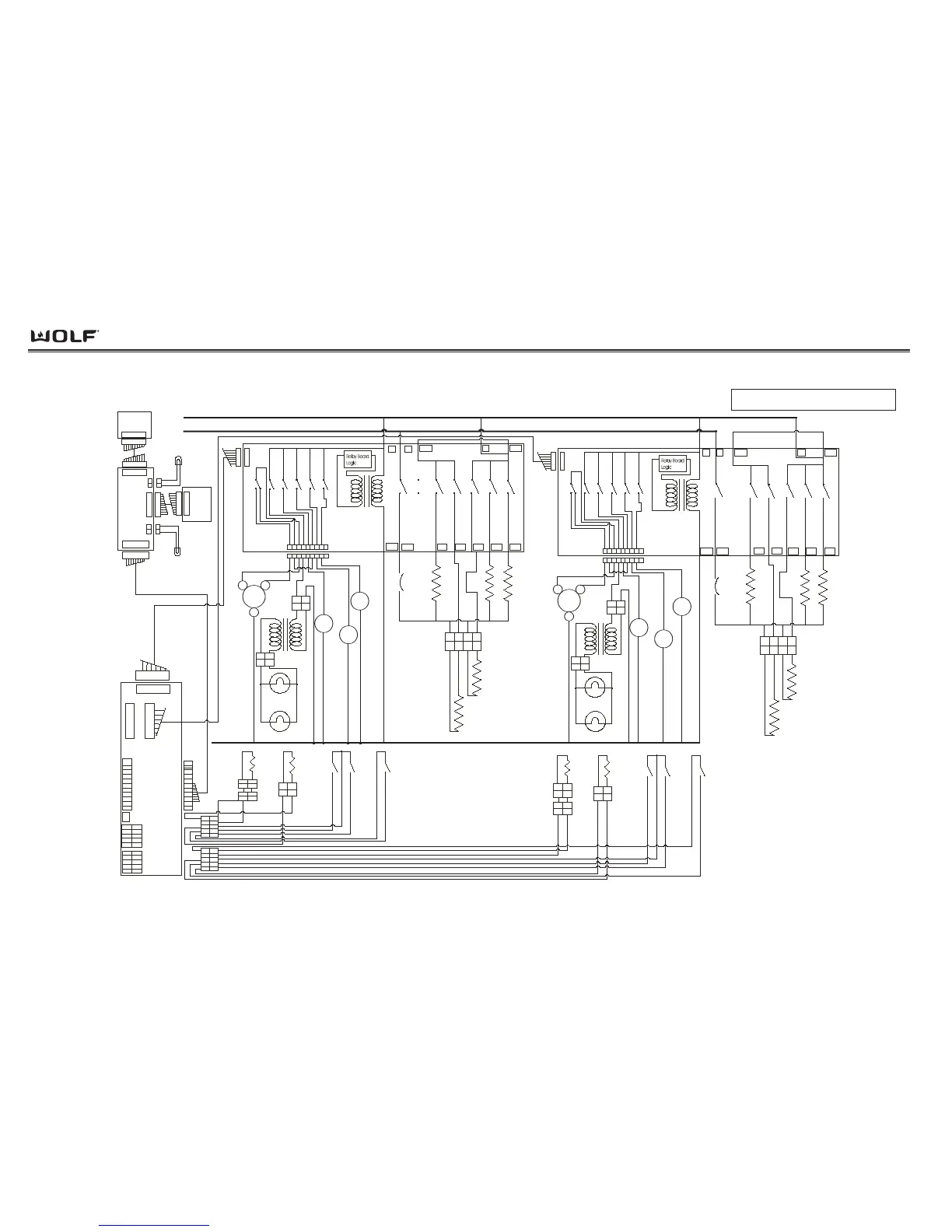
Wiring Diagrams
DDuuaall FFuueell RRaannggee
7-28
L1
L2
30" R ight
Relay
Board
K1
NO
K2
NO
K3K4K5
NO
NO
NO
K7
NO
K14
1
22
1
22
12
3
45
6
78
9
1234
Mol ex S abr e
Connector
Outer B ak e El .
1000W
240V
Inner Bake E l.
1200W
240V
Br oil El.
3600W
240V
R Cvt El.
2400W
240V
L Cvt El
2400W
240V
Bi-metal
Thermostat
(T hermo
Limiter)
1
4
2
Cooling
Fan Motor
L.Cvt
Fan
R. Cvt
Fan
Motor
Door
Lock
20W Oven
Light
20W Oven
Light
NEU T R AL
122
1
2
3
4
5
6
7
8
9
12
Meat
Probe
Sensor
Meat
Probe
R ecept ical
RTD
Sensor
12
Molex
Connector
Amp
Connector
MDL
Unlatched
Switch
MDL
Latched
Switch
Door
Switch
12
12
2 pin
Amp Conn.
2 pin
Amp
Conn
1
1
2
2
1234
L1
L2
L1-B L1-A
DLB P r5 P r4 P r3 P r2 P r1
J11A
J4
J1
NO NO NO
K9K10K11
K12
K13
NONONONONO
NO
12345
6
789
J3
2V LE D
Right
Mode/temp
knob
ECH
Assembly
12
12
110
110
110
110
Left
Mode/temp
knob
12
12
J1
J8
J7
J2
2V LE D
J6
110
110
110
110
1
2
3
4
5
6
8
9
7
19
19
1
2
3
4
5
6
8
9
10
J2
1
2
3
4
5
6
8
9
10
J3
1
2
3
4
9
5
6
8
10
1
2
3
4
9
5
6
8
10
12
2
1
Relay
Board
K1
NO
K2
NO
K3
NO
K7
NO
K14
1
22
1
22
12
3
45
6
78
9
1234
Mol ex S abr e
Connector
Inner Bake E l.
1450W
240V
Br oil El.
3600W
240V
L Cvt El
2400W
240V
1
4
2
Cool ing
Fan Motor
L.Cvt
Fan
Motor
Door
Lock
20W Oven
Light
20W Oven
Light
12
Meat
Probe
Sensor
Meat
Probe
R ecept ical
RTD
Sensor
12
Molex
Connector
Amp
Connector
MDL
Unlatched
Switch
MDL
Latched
Switch
Door
Switch
12
12
2 pin
Amp Conn.
2 pin
Amp
Conn
1
1
2
2
1234
Wolf Appliance
Company, L L C
60 Dual F uel Oven
Schematic Diagram
L1L1 L2 L1-B L1-A
NEU DLB Pr3 Pr2 Pr1
J1
NO NO NO
K9K10K11K12K13
NONONONONO
NO
12345
6
789
J3
12
2
1
122
J5
122
122
Oven
Controller
Bi-metal
Thermostat
R. Cvt
Fan
Outer B ak e El .
1000W
240V
Pr5 Pr4
K4K5
NONO
R Cvt El
2400W
240V
NEU
L1
Oven
Oven
30" L eft
SWS 16000000

Table of Contents

Related product manuals