EasyManua.ls Logo

Wolf DF30 - Page 87

Wolf DF30
108 pages
Print Icon
To Next Page IconTo Next Page
To Next Page IconTo Next Page
To Previous Page IconTo Previous Page
To Previous Page IconTo Previous Page
Loading...
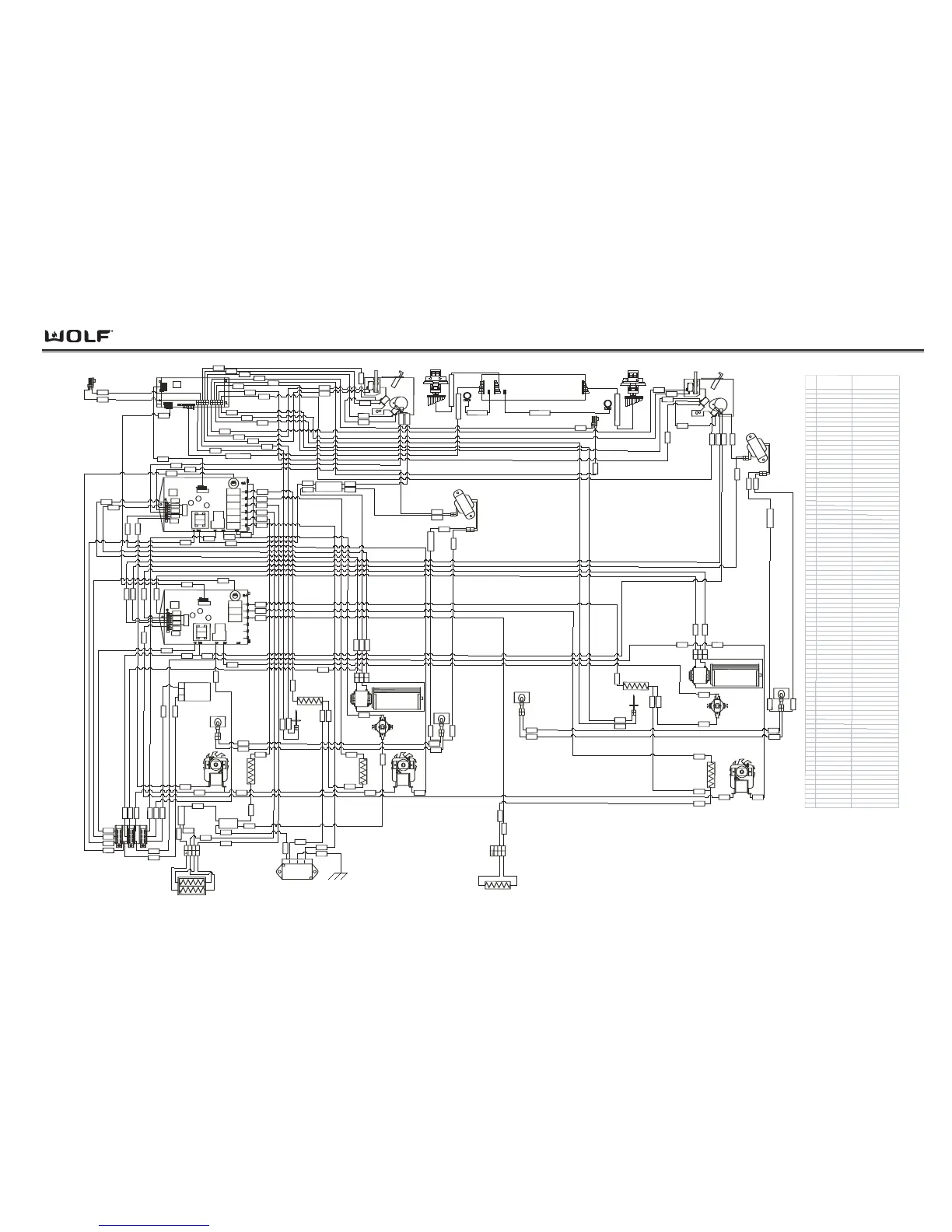
Wiring Diagrams
DDuuaall FFuueell RRaannggeess
W olf Appliance Co
mpany, L LC
48" Diagr am Ove
n
Wirin
g D i agr am
Wo
lf # 804345A Revison A
Mode
ls
DF486C, DF 486-L P , DF486G, DF486-L P ,
DF484CG, DF 484CG-L P , DF 484DG, DF4
84DG-LP
DF484DC, DF484DC-L P , DF 484F , DF 48
4F -L P
L2 Splice
Righ
t
Con
vect
io
n
Eleme
n
t
Br
o
i
l Elem
e
n
t
L
e
ft Con
vect
ion
Eleme
n
t
23
4
3
2
1
1
P
izza
E
lement
Receptacle
1
1
2
2
T
e
rminal
Block
LOHI
AM
P
CO
NNEC
TO
R
M
a
te
s
wi
th
Ra
n
g
e
to
p
1
3
L
2
splice
1
1
2
2
L
ig
h
t
T
ran
sf
o
rme
r
1
1
1
1
2
2
2
2
L
ig
ht
Transf
ormer
1
1
1
1
2
2
2
2
R
elay Board
1
1
2
2
Unlatched
Switch
Latched
Switch
D
o
o
r
S
w
i
t
c
h
Motor Door
Lock
234
321
1
3
0" Cooling
Fan
1
1
2
2
3
3
1
1
2
2
UnlatchedSwitch
Latched
Switch
D
o
o
r
Sw
i
t
c
h
Motor Door
Lock
n
e
u
t
r
a
l splice
Relay B oar d
N
L2
L1
ECH Assembly (Pod)
LOHI
Oven Contr oller
Board
1
6
1
6
18
" Cool ing
Fan
1
1
2
2
3
3
75
2
1
3
4
5
61
62
63
64
65
70
69
68
66
10
9
8
6
OC to Pod
67
7
15
14
3
0
2
1
1
9
2
2
2
3
2
0
18
1
3
6
7
5
3
71
73
74
77
72
8
4
8
0
7
9
8
2
8
1
39
41
1
8
4
8
4
9
3
6
3
7
4
3
4
4
45
4
6
4
7
2
6
2
7
4
2
47
5
1
2
4
5
0
fuse
f
u
se
2
8
4
0
4
9
1
7
3
6
3
7
34
3
5
9
1
9
0
9
1
9
0
8
5
7
7
5
2
9
4
5
6
5
2
57
1
1
2
0
3
1
3
3
3
2
11
31
1
3
3
8
5
1
40
5
5
5
6
5
7
2
9
2
8
2
6
2
7
2
5
2
4
2
9
3
2
1
5
5
4
3
10
9
33
14
16
61
6
2
66
69
63
76
8
5
7
1
7
3
55
8
2
8
6
8
6
9
4
6
8
7
0
8
8
8
9
7
4
8
7
6
5
6
4
89
8
8
35
3
4
2
2
4
2
8
6
7
9
5
3
1
9
3
0
8
3
4
1
21
81
39
48
38
20
8
3
12
17
2
5
OC t
o
Po
d
Pod
to Kno
b
P
o
d to Kno
b
2V LED
2V LED
Man
u
a
l Re
set
Bi-m
e
tal The
r
most
a
t
(
T
h
e
r
mo
-
L
imiter
)
Man
u
a
l
Re
set
Bi-met
a
l
T
h
e
r
most
a
t
(
The
r
mo
- L
i
m
it
e
r
)
L
e
ft
Con
vect
io
n
Fa
n
R
ig
h
t
C
o
n
vect
i
o
n
Fa
n
RTD
Ba
ke
Ele
m
e
n
t
Righ
t
O
ven
L
igh
t
Meat Probe
Receptacle
Temperature
Knob and
Selector Switch
Temperature Knob and
Selector Switch
Righ
t
O
ven
L
ig
h
t
RTD
Br
o
il
Elem
e
n
t
Con
vect
io
n
Ele
me
nt
C
o
n
vect
ion
Ele
me
n
t
L
e
ft
O
ve
n
L
ig
h
t
WIRE W IRE COLOR
INFO
1GRAY
MP
2 GRAY/BLACK DST
MP-
3 BROWN/BLACK DST
MN
4BROWN
MU
5PURPLE
ML
6TAN
RTD
7BLACK
RB TO OC (22 WIRES)
8TAN/BLACK DST
RTD-
9 YELLOW
DS
10
YELLOW/BLACK DST
DS-
11
BLACK/WH DST
HF
12
BLACK
RB JUMPER
13 LT BLUE
LF
14 BLACK/WHITE HA
TRA NS
15
GRAY/BLACK HA
MDL
16 PURPLE/BLACK DST
MN JUMPER
17 ORANGE
LCF
18 BLUE
RCF
19
B
LAC
K
L1 L
OG
IC
20
WH
ITE
N
LOGIC
21
R
E
D
L2
22
R
E
D
D
LB
TO TCO
23
B
LAC
K
L1 JU
M
P
E
R
24
B
LAC
K
/PU
R
P
LE D
S
T
P
IZZA
25
BLACK
/BLUE
DS
T
R
C
E
26
B
L
A
C
K
/GR
E
EN
D
S
T
O BA
K
E
27
B
LA
C
K
/YE
LLOW DST
I BA
K
E
28
BLA
C
K
/ORA
N
GE D
S
T
LCE
29
B
LACK/
R
E
D
D
S
T
B
ROIL
30
B
LACK
L1 RE
LAY
S
31
WH
ITE
N
SP
L
I
C
E
TO COOL F
A
N
N
32
WH
ITE
S
P
LIC
E
TO TRA
NS
N
33
WH
ITE
SPLIC
E TO MDL N
34
R
E
D
TRA
NS
TO LIGHT
35
BLU
E
TR
A
N
S
TO LIGHT F
U
S
E
36
R
E
D
LIGH
T
TO LIGHT
3
7
B
LU
E
LIGHT TO L
I
GHT 2
38
WH
ITE
C
OOL F
A
N N
39
R
E
D
R
A
N
GE
TOP L2
40
RE
D
L2 JUMPER
41
WH
ITE
R
A
NGET
O
P N
4
2
R
E
D
TCO TO SPLICE L2
43
R
E
D
SPLIC
E TO SP
LIC
E
L2
44
RED
S
P
LIC
E
TO
S
A
BER
2 L
2
45
R
E
D
S
P
L
I
CE
TO SA
B
E
R
4 L2
46
R
E
D
S
PLIC
E
TO R
C
E
L2
4
7
R
ED
S
P
LIC
E
TO PIZZA L2
48
WH
ITE
R
C
F
N
49
WHI
T
E
LC
F
N
50
GR
E
E
N
P
IZZA GND
51
R
E
D
B
ROI
L
L2
52
R
E
D
LCE
L2
53
B
LAC
K
L1
R
E
LAY
S
54
B
LAC
K
L
1 JU
M
P
E
R
55
B
LA
CK
/RE
D
CK
BROIL
56
B
LAC
K
/
OR
AN
GE
CKLC
E
57
B
LAC
K
/YELLOW C
K
I BA
K
E
1
8
"
Ba
ke
Ele
me
n
t
7
5
8
4
Meat Probe
Receptacle
61
TAN
/
B
LAC
K
CKMP
62
TA
N
/BLAC
K
SP
MP-
63
B
R
OWN
/BLAC
K
SP
M
N
64
B
R
O
WN
/BLAC
K
CK
MU
65
P
U
R
P
LE
/
B
LAC
K
CKML
66
TA
N
/BLAC
K
CKD
S
67
WH
ITE
R
B
TO OC
68
Y
E
L
LOW
C
KRTD
69
TAN
/
B
LAC
K
SP
D
S
70
Y
E
LLOW S
PR
TD
71
B
R
OWN
/GRA
Y
S
T
H
F
72
B
LAC
K
R
B
J
U
MPE
R
73
LT BLUE
/
B
LAC
K
ST LF
74
B
LAC
K
/
GR
A
Y
S
T
TR
A
N
S
75
B
LAC
K
/GRA
Y
CK
M
D
L
76
P
U
R
P
LE/B
LAC
K
S
PMN JU
MPE
R
77
OR
A
N
GE
/
B
LA
C
K
C
K
LCF
78
B
LUE
/BLA
C
K
S
P
R
C
F
79
B
LAC
K
L1
LOGIC
80
WH
ITE
N
LOGIC
81
R
E
DL2
82
R
E
D
D
LB TO T
C
O
8
3
WH
ITE
C
OOL F
A
N N
84
WH
ITE
MDL N
85
WH
ITE
R
C
F
N
86
R
E
DTC
O
TO S
P
LICE
L2
8
7
WH
ITE
TRA
N
S
N
88
B
LU
ETR
A
N
S
TO LIGHT
89
R
E
DTR
A
N
S
TO LIGHT F
U
S
E
90
B
LU
E
LIGH
T
TO LIGH
T
9
1
R
E
D
LIGH
T TO L
I
GH
T 2
92
RED
S
P
L
I
C
E
TO SA
B
RE
4 L2
94
R
E
DL2 JU
MPE
R
7-7

Table of Contents

Related product manuals