EasyManua.ls Logo

Wolf DF30 - Page 88

Wolf DF30
108 pages
Print Icon
To Next Page IconTo Next Page
To Next Page IconTo Next Page
To Previous Page IconTo Previous Page
To Previous Page IconTo Previous Page
Loading...
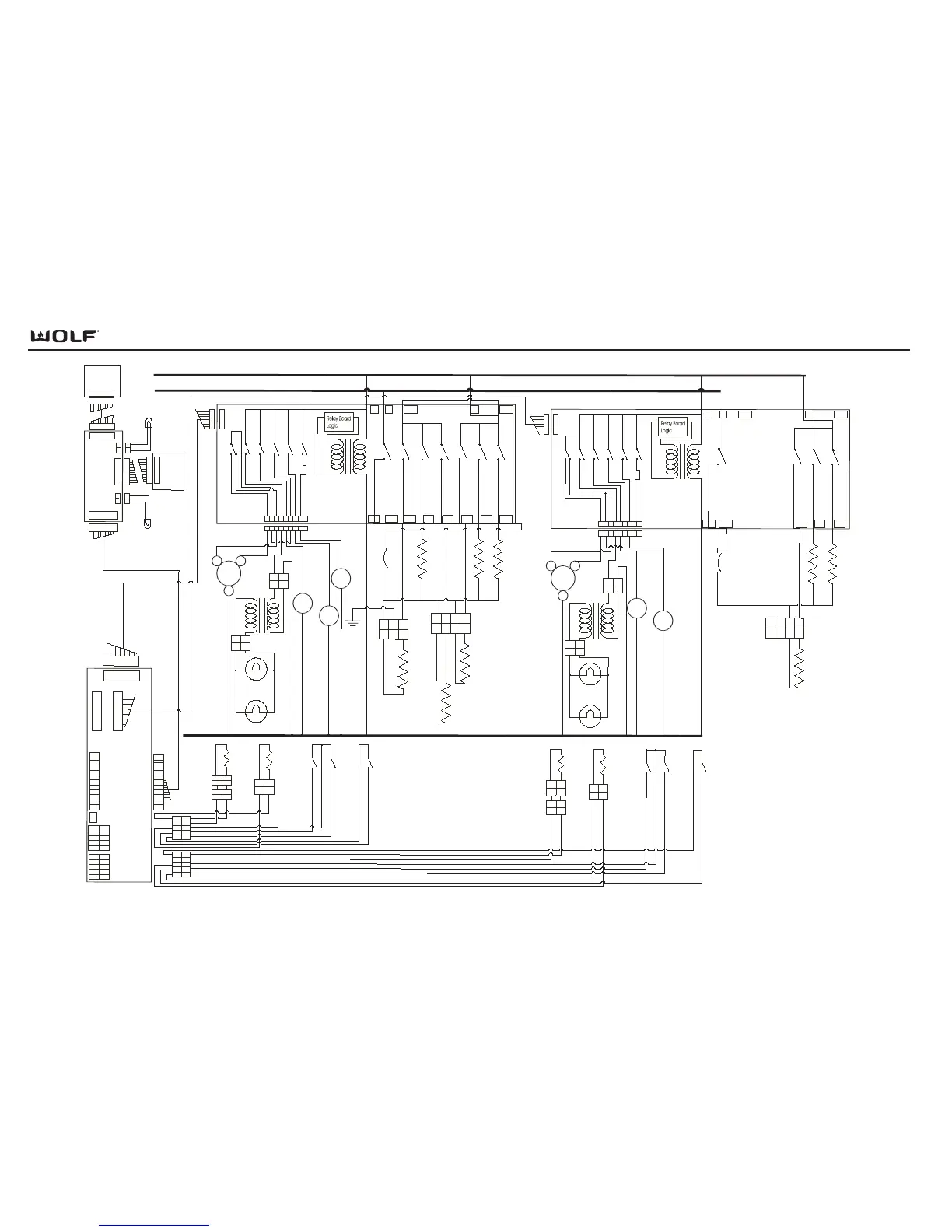
Wiring Diagrams
DDuuaall FFuueell RRaannggee
7-8
L1
L2
30" Oven
Relay
Board
K1
NO
K2
NO
K3
K4K5K6
NO
NO
NONO
K7
NO
K14
1
22
1
22
12
3
4
5
6
78
9
1
234
1
3
Molex S
a
br
e
Con
nector
Pizza
E
le
men t
Receptacle
Pizza El.
3
500W
2
40V
Outer
Bake
E
l
.
1000W
240V
Inner
Bake
E
l.
1200W
240V
B
r
oil E l.
3600W
240V
R Cvt
E
l.
24
00W
2
40V
L Cvt El
2400W
240V
B
i-
met a l
T
hermo s t at
(T
h
er mo
Lim
iter)
1
4
2
Cooli ng
F
an
Motor
L
.Cvt
F
an
R. Cvt
F
a
n
M
otor
Doo
r
L
ock
20W Oven
Light
20
W Oven
Lig
ht
NEUT R AL
122
1
2
3
4
5
6
7
8
9
G
G
ND
12
Meat
Prob
e
Sensor
M
eat
Pro
be
Re
cep ti cal
RT
D
Senso
r
12
M
o
lex
Con
nector
Amp
Co
nnecto r
M
DL
Un
latched
Switch
M
DL
L
atched
Switch
Doo
r
Switch
12
12
2 pi
n
Amp Conn.
2
pi n
Amp
Con
n
1
1
2
2
1
2
3
4
L1
L1
L2
L1-B
L1-A
NEU DL B
Pr6
Pr5
Pr4 P
r3
P
r2 Pr1
J11A
J4
J1
NO
NO
NO
K9K10
K11
K12
K13
NONO
NO
NO
NO
NO
1234
5
6
78
9
J
3
2V LE D
Right
Mode/temp
knob
ECH
Assembl
y
12
12
110
110
110
110
Left
Mode/temp
knob
12
12
J1
J8
J7
J2
2V LE D
J6
1
10
1
10
1
10
1
10
1
2
3
4
5
6
8
9
7
1
9
1
9
1
2
3
4
5
6
8
9
10
J2
1
2
3
4
5
6
8
9
1
0
J
3
1
2
3
4
9
5
6
8
10
1
2
3
4
9
5
6
8
10
1
2
2
1
18" Oven
R
elay
Board
K1
N
O
K2
N
O
K3
N
O
K7
NO
K14
1
22
1
22
1
2
3
4
5
6
78
9
1
2
3
4
Molex S abre
Con
nector
P
izza
E
le
men t
Receptacle
Inner
Bake
E
l.
1450W
240V
Bro
il E
l.
3
600W
240V
L Cvt
E
l
24
00W
24
0V
1
4
2
Co
oling
F
an
Motor
L.Cvt
F
a
n
Motor
Do
or
Lock
20W Oven
Light
20
W Oven
Lig
ht
1
2
Meat
Probe
Sensor
Meat
Pro
be
Re
cep ti cal
RT
D
Sensor
12
Molex
Con
nector
Amp
Co
nnecto r
M
DL
Un
latched
Switch
MDL
L
atched
Switch
Doo
r
Switch
1
2
1
2
2 pi
n
Amp Conn.
2
pi n
Amp
Co
nn
1
1
2
2
1
23
4
W olf Appliance
Company
, L L C
48" D ual F uel Oven
Schematic Diagram
L1
L1 L2 L1-B
L1-A
NEU DLB
P
r3
P
r2 P
r1
J1
NO
NO
NO
K9
K10K11
K12K13
NO
NONO
NO
NO
NO
1
2
3
45
6
78
9
J3
1
2
2
1
122
J5
1
22
122
Oven
Contr oller
Bi-metal
T
hermo s tat
(
T
h
er mo L imiter)

Table of Contents

Related product manuals