EasyManua.ls Logo

Wolf DF30 - Page 89

Wolf DF30
108 pages
Print Icon
To Next Page IconTo Next Page
To Next Page IconTo Next Page
To Previous Page IconTo Previous Page
To Previous Page IconTo Previous Page
Loading...
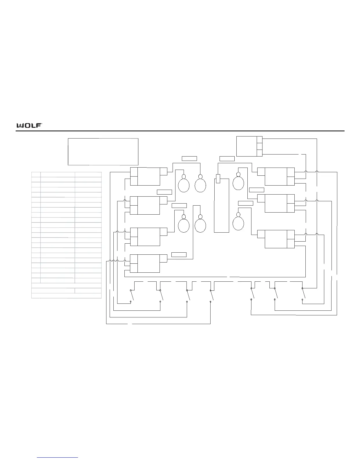
Wiring Diagrams
DDuuaall FFuueell RRaannggeess
7-9
CHARBROILER
SPARK
MODULE
L1
N
spark
lead
RIGHT
REAR
SPARK
MODULE
L1
N
spark
lead
RIGHT
FRONT
SPARK
MODULE
L1
N
spark
lead
POWER INPUT
AMP
CONNECTOR
N
3
L1
1
RIGHT
REAR
RIGHT
FRONT
CHAR-
BROILER
REAR
MIDDLE
SPARK
MODULE
L1
N
spark
lead
LEFT
REAR
SPARK
MODULE
L1
N
spark
l
ead
LEFT
F
RONT
SPARK
M
ODULE
L1
N
spa
rk
l
ead
F
RONT
MIDDLE
SPARK
MODULE
L1
N
spark
lead
MIDDLE
REAR
MIDDLE
FRONT
L
EFT
REAR
LEFT
F
RONT
RIGHT
FRONT
SWITCH
RIGHT
REAR
SWITCH
CHARBROILER
SWITCH
FRONT
M
IDDLE
SWITCH
REAR
MIDDLE
SWITCH
LEFT
FRONT
SWIT
CH
LEFT
REAR
SWITCH
1
9
10
11
16
17
18
6
2
3
5
7
12
15
21
4
8
20
19
14
13
Dual Fuel Rangetop Harness
Model DF486C
sparker wi
r
e
sparker wire
sparker wi
r
e
sparker wire
sparker wire
sparker wire
sparker wire
WIRE
WIRE COLOR
INFO
1 BLACK L1 IN
2 WHITE N IN
3 WHITE N JUMPER
4 BLACK/YELLOW SST RIGHT REAR
5 WHITE N JUMPER
6 BLACK/RED SST RIGHT FRONT
7WHITE N JUMPER
8BLACK/
GREEN SST
CHARBROILER
9BLACK L1 JUMPER
10 BLACK L1 JUMPER
11 BLACK L1 JUMPER
12 WHITE
N JUMPER
13
BLACK/BLUE SST
MIDDLE FRO
NT
14
BLACK/PURPLE SST MIDDLE REAR
15 WHITE
N JUMPER
16 BLACK L1 JUMPER
17
BLACK L1 JUMPER
18 BLACK L1 JUMPER
19 BLACK/GRAY SST LEFT FRONT
20 BLACK/TAN SST LEFT REAR
21 WHITE
N JUMPER
SST: SINGLE STRIPE O
N THE WIRE
HA: HASH ON THE
WIRE
DST: DOUBLE STRIPE ON THE WIRE

Table of Contents

Related product manuals