EasyManua.ls Logo

Wolf DF30 - Page 92

Wolf DF30
108 pages
Print Icon
To Next Page IconTo Next Page
To Next Page IconTo Next Page
To Previous Page IconTo Previous Page
To Previous Page IconTo Previous Page
Loading...
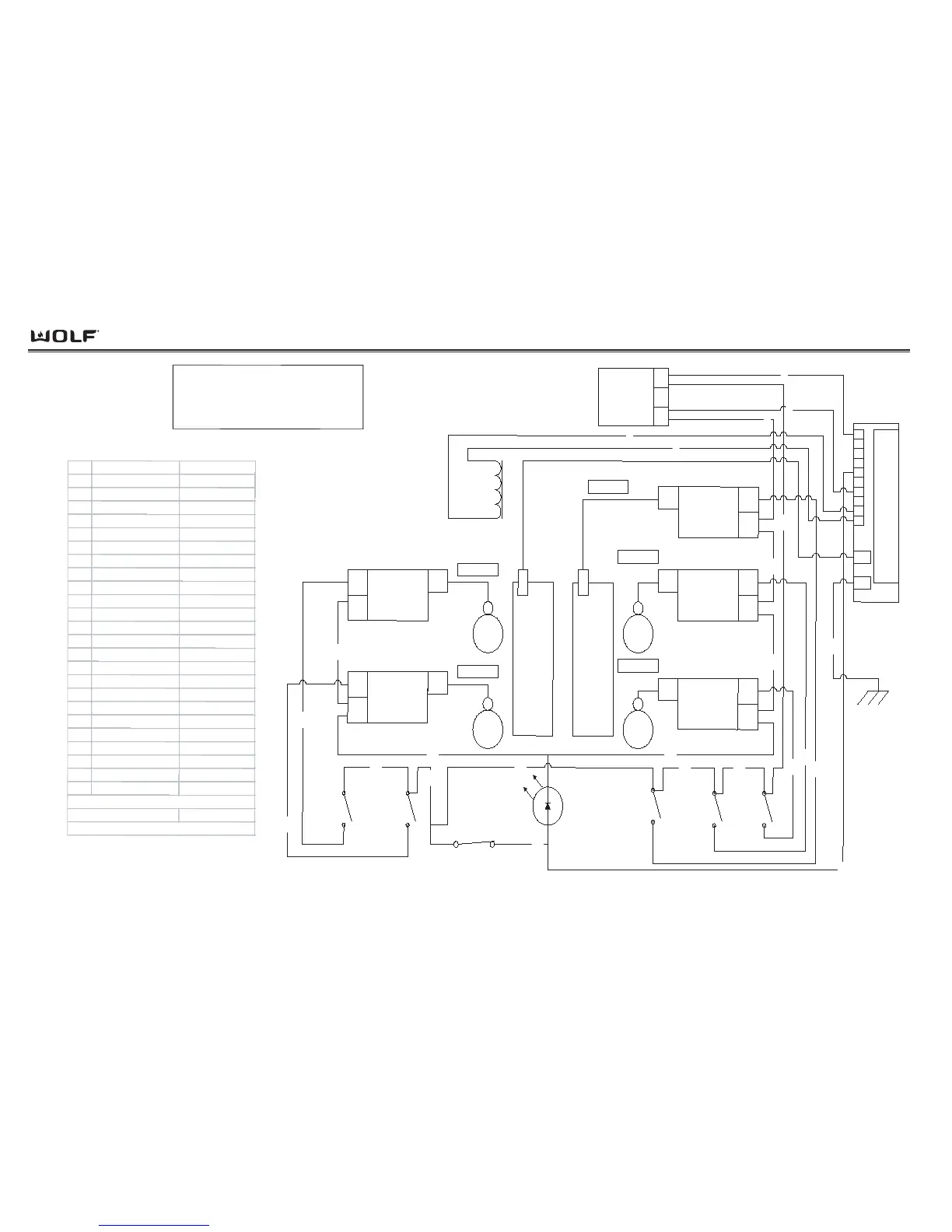
Wiring Diagrams
DDuuaall FFuueell RRaannggee
7-12
RIGHT
FRONT
SPARK
MODULE
L1
N
spark
lead
RIGHT
REAR
SPARK
MODU
L
E
L1
N
spark
lead
10
J4
GND
9
8
7
6
5
4
3
2
1
DSI
S
P
A
R
K
E
R
RIGHT
REAR
RIGHT
FRONT
CHAR-
BROILER
CHARBROILER
SPARK
MODULE
L1
N
spark
lead
Griddle
LEFT
R
EAR
SPARK
MODULE
L1
N
spark
lead
LEFT
FRONT
SPARK
MODULE
L1
N
spark
lead
POWER INPUT
AMP
CONNECTOR
N
3
L1
1
LEFT
FRONT
LEFT
REAR
120
VAC
INDICATOR
LIGHT, LED
t
o
THERMOSTAT
RIGHT
FRONT
SWITCH
RIGHT
REAR
SWITCH
CH
ARBROILER
SWITCH
LEFT
FRONT
SWITCH
LEFT
REAR
SWITCH
1
2
3
4
9
11
17
19
13
14
15
18
21
20
8
12
10
16
22
24
23
1
0VDC
GRIDDLE/
FRENCH TOP
Solenoid
5
7
6
Dual Fuel Rangetop Harness
Model DF484CG
sparker wire
sparker wire
sparker wire
sparker wire
sparker wire
WIRE
WIRE COLOR
INFO
1BLACK
L1 TO DSI
2
BLACK
L1 IN
3
WHITE
N TO DSI
4
WHITE
N IN
5
GREEN/YELLOW DST
SPARKER GND
6
WHITE/ORANGE HA
SOLENOID N
7
BLACK/ORANGE HA
SOLENOID
8
BLACK/ORANGE SST
DSI INPUT
9WHITE
N JUMPER
10
BLACK/YELLOW SST
RIGHT REAR
11 WHITE
N JUMPER
12 BLACK/RED SST
RIGHT FRONT
13 BLACK
L1 JUMPER
14
BLACK
L1 JUMPER
15 BLACK
L1 JUMPER
16 BLACK/GREEN SST
CHARBROILER
17 WHITE
N JUMPER
18 BLACK
L1 JUMPER
19 WHITE
N JUMPER
20
BLACK/ORANGE SST
LED INDICATOR
21 BLACK
L1 JUMPER
22 BLACK/GRAY SST
LEFT FRONT
23 WHITE
N JUMPER
24 BLACK/TAN SST
LEFT REAR
SST: SINGLE STRIPE ON THE WIRE
HA: HASH ON THE WIRE
DST: DOUBLE STRIPE ON THE WIRE

Table of Contents

Related product manuals