EasyManua.ls Logo

Wolf DF30 - Page 93

Wolf DF30
108 pages
Print Icon
To Next Page IconTo Next Page
To Next Page IconTo Next Page
To Previous Page IconTo Previous Page
To Previous Page IconTo Previous Page
Loading...
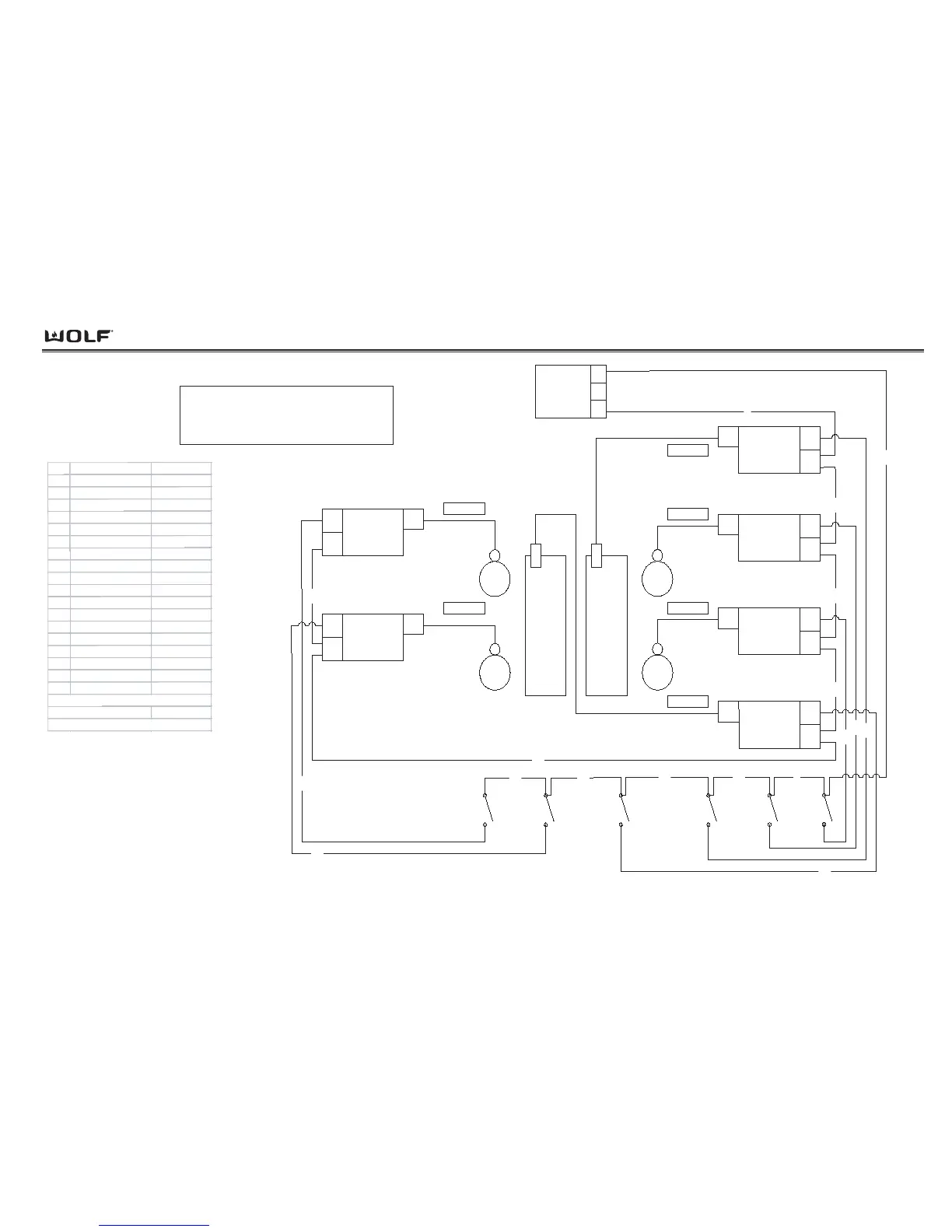
Wiring Diagrams
DDuuaall FFuueell RRaannggeess
7-13
RIGHT
CHARBROILER
SPARK
MODULE
L1
N
spark
lead
RIGHT
REAR
SPARK
MODULE
L1
N
spark
lead
RIGHT
FRON
T
SPARK
M
ODU
LE
L1
N
spark
lead
LEFT
CHARBROILER
SPARK
MODULE
L1
N
spark
lead
RIGHT
REAR
RIGHT
F
RON
T
CHAR-
BROILER
CHAR-
BROI
LER
LEFT
REAR
S
PARK
MODULE
L1
N
spark
lead
LEFT
FR
ONT
SPARK
MODU
LE
L1
N
spark
lead
LEFT
REAR
LEFT
FRONT
POWER INPUT
AMP
CONNECTOR
N
3
L1
1
RIGHT
FRONT
SWITCH
R
IGHT
REAR
SWIT
C
H
R
IGHT
CHARBROILER
SWIT
CH
LEFT
C
HARBROILER
SWITCH
LEFT
FRON
T
SWITCH
LEFT
REAR
SWITCH
1
2
3
5
7
17
9
10
11
12
15
18
6
4
8
13
16
14
Dual Fuel Rangetop Harness
Model DF48DC
sparker wire
sparker wire
sparker wire
sparker wire
sparker wire
sp
arker w
ire
WIRE
WIRE COLOR
INFO
1BLACK
L1 IN
2WHITE
N IN
3WHITE
N JUMPER
4 BLACK/YELLOW SST
RIGHT REAR
5WHITE
N JUMPER
6
BLACK/RED SST
RIGHT FRONT
7
WHITE
N JUMPER
8
BLACK/GREEN SST
CHARBROILER
9BLACK
L1 JUMPER
10 BLACK
L1 JUMPER
11 BLACK
L1 JUMPER
12
BLACK
L1 JUMPER
1
3
BLACK/ORANGE SST
CHARBROILER
14
BLACK/GRAY SST
LEFT FRONT
1
5
BLACK
L1 JUMPER
16 BLACK/TAN SST
LEFT REAR
17 W
HITE
N JUMPER
18 WHITE
N JUMPER
SST: SINGLE STRIPE ON THE WIRE
HA: HASH ON THE WIRE
DST: DOUBLE STRIPE ON THE WIRE

Table of Contents

Related product manuals