EasyManua.ls Logo

Wolf e Series - Page 8

Wolf e Series
20 pages
Print Icon
To Next Page IconTo Next Page
To Next Page IconTo Next Page
To Previous Page IconTo Previous Page
To Previous Page IconTo Previous Page
Loading...
E Series Oven Specifications 8
E Series Double Oven
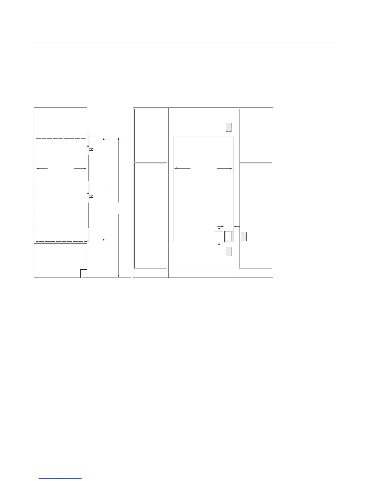
STANDARD INSTALLATION
67" (1702)
T
YPICAL*
49
5
/8"
(1260)
OPENING
HEIGHT
E
E
E
2
8
1
/2" (724)
O
PENING WIDTH
E
5"
(127)
4"
(102)
2
4"
(610) min
O
PENING DEPTH
*Dimension must accommodate height of oven trim.
NOTES: Location of electrical supply within opening may require additional cabinet depth.
Dashed line represents profile of unit.
FRONT VIEWSIDE VIEW

Other manuals for Wolf e Series

Related product manuals