EasyManua.ls Logo

Wolf IG15/S - Page 11

Wolf IG15/S
120 pages
Print Icon
To Next Page IconTo Next Page
To Next Page IconTo Next Page
To Previous Page IconTo Previous Page
To Previous Page IconTo Previous Page
Loading...
E SERIES BUILT-IN OVENS
11
SPECIFICATIONS
E Series Built-In Single Oven
Overall Width 29
7
/8" (759)
Overall Height 27
7
/8" (708)
Overall Depth 23
3
/4" (603)
Door Clearance 22" (559)
Overall Oven
Interior Capacity 4.5 cu ft (127 L)
Overall Interior Dim 25" x 16
1
/2" x 19"
(W x H x D) (635 x 419 x 483)
Usable Interior Dim 21
1
/2"x 16
1
/2"x 16
3
/8"
(W x H x D) (546 x 419 x 416)
Min Cabinet Width
Standard 30" (762)
Flush Inset 33" (838)
Min Cabinet Depth
Standard 24" (610)
Flush Inset 25" (635)
Min Base Support 250 lbs (113 kg)
Opening Width 28
1
/2" (724)
Flush Inset Width 30
3
/8" (772) min
Opening Height 27
3
/16" (691)
Flush Inset Height 28
1
/2" (724) min
Trim Overlaps
5
/8" (16) top
1
/8" (3) bottom
3
/4" (19) each side
Electrical Supply 240/208 V AC, 60 Hz
30 amp circuit
Conduit 4' (1.2 m) flexible 3-wire
Electrical Rating 5.1 kW at 240 V
3.8 kW at 208 V
Total Amps 21
Shipping Weight 273 lbs (124 kg)
MODEL OPTIONS
E Series Built-In Single Oven
Framed SO30-2F/S
Unframed SO30-2U/S
27
3
/16"
(691)
OPENING
HEIGHT
28
1
/2" (724)
OPENING WIDTH
5"
(127)
4"
(102)
24"min (610)
OPENING DEPTH
E E
E
E
33"
(838)
RECOMMENDED CABINET WIDTH
30"min (762)
ELECTRICAL LOCATION
WITHIN OPENING
APPLIES ONLY TO
CABINETS DEEPER
THAN 24" (610)
E
E
5"
(127)
4
3
/4"min (121)
33" (838)
RECOMMENDED CABINET WIDTH
30"min (762)
3
3
/4"min (95)
36" (914)
STANDARD
FLOOR TO
COUNTER
HEIGHT
27
3
/16"
(691)
OPENING
HEIGHT
28
1
/2" (724)
OPENING WIDTH
4"
(102)
24"min (610)
OPENING DEPTH
ELECTRICAL
LOCATION WITHIN
OPENING APPLIES
ONLY TO CABINETS
DEEPER THAN 24" (610)
23
3
/4" (603)
BEHIND FRAME
27
7
/8"
(708)
28
1
/4"
(718)
29
7
/8"
(759)
23
3
/4"
(603)
CONDUIT
CHANNEL
OPEN OVEN DOOR
TOP VIEW
22"
(559)
1
1
/4"
(32)
1" (25)
1
7
/8"
(48)
1
7
/8"
(48)
RIGHT SIDE VIEW
27
1
/16"
(687)
29
7
/8"
(759)
2
5
/8"
(67)
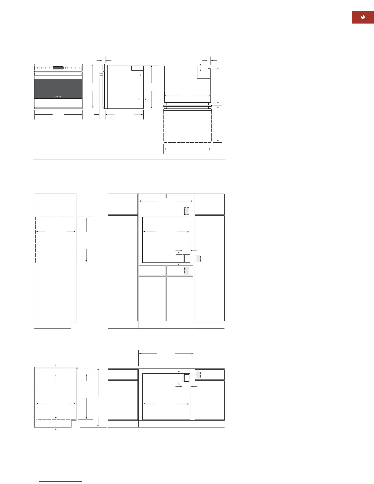
OVERALL DIMENSIONS
E Series Built-In Single Oven
INSTALLATION SPECIFICATIONS
E Series Built-In Single Oven
Standard InstallationWall Application
Standard InstallationUndercounter Application
Unit dimensions may vary to ±
1
/
8
" (3).
INSTALLATION OPTIONS
Wolf E Series built-in ovens may be used in a
standard installation, where the face trim
overlaps stiles and rails, or in a flush inset
installation with the front of the oven flush
with surrounding cabinetry. Refer to the
following illustrations.
IMPORTANT NOTE: Unless you are using
cabinets deeper than 24" (610) for a standard
installation or 25" (635) for a flush inset instal-
lation,
it is recommended that the electrical
supply be placed in an adjacent cabinet within
reach of the conduit. Choose the location
shown in the illustrations that best suits your
installation.

Other manuals for Wolf IG15/S

Related product manuals