EasyManua.ls Logo

Wolf IG15/S - Page 12

Wolf IG15/S
120 pages
Print Icon
To Next Page IconTo Next Page
To Next Page IconTo Next Page
To Previous Page IconTo Previous Page
To Previous Page IconTo Previous Page
Loading...
Dimensions in
parentheses are in
millimeters unless
otherwise specified.
12
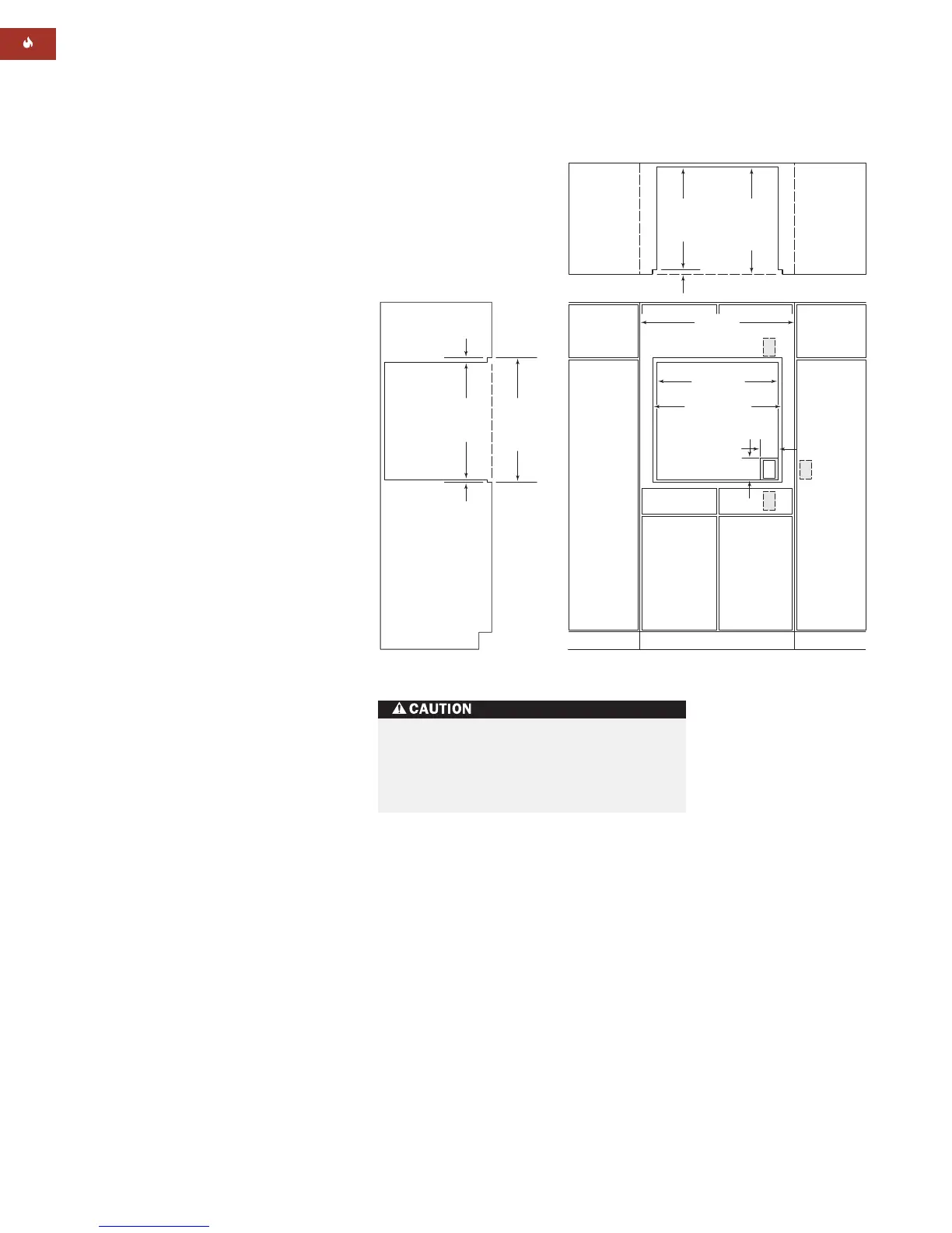
INSTALLATION OPTIONS
The Wolf E Series single oven may be
installed below a Wolf 30" (762) induction,
electric or gas cooktop. Unless you are using
cabinets deeper than 24" (610), it is recom-
mended that the electrical supply be placed
in the base cabinet to the right of the oven
within reach of the conduit. It may also be
installed below a 36" (914) induction, electric
or gas cooktop.
An E Series single oven may be installed in
combination with a Wolf microwave and
warming drawer. Refer to the warming
drawers section for specifications.
The E Series single oven may be installed
next to another E Series single oven. You
must allow for a 2
1
/2" (64) space between
the oven rough openings. Also, a separate
inner wall is required for each oven between
openings.
IMPORTANT NOTE: Unless you are using
cabinets deeper than 24" (610) for a standard
installation or 25" (635) for a flush inset instal-
lation,
it is recommended that the electrical
supply be placed in an adjacent cabinet within
reach of the conduit. Choose the location
shown in the illustration that best suits your
installation.
E SERIES BUILT-IN OVENS
27
3
/16"
(691)
OPENING
HEIGHT
28
1
/2"min
(724)
FLUSH
INSET
HEIGHT
30
3
/8"min (772)
FLUSH INSET WIDTH
28
1
/2" (724)
OPENING WIDTH
5"
(127)
4"
(10 2)
E
E
E
E
36"
(914)
RECOMMENDED CABINET WIDTH
33"min (838)
24"min
(610)
OPENING
DEPTH
1" (25)
25"min
(635)
FLUSH
INSET
DEPTH
7
/16" (11)
7
/8" (22)
ELECTRICAL LOCATION
WITHIN OPENING
APPLIES ONLY TO
CABINETS DEEPER
THAN 25" (635)
SIDE VIEW
TOP VIEW
INSTALLATION SPECIFICATIONS
E Series Built-In Single Oven
Flush Inset InstallationWall Application
For flush inset installations, cabinet materials
must be able to withstand temperatures up
to 195˚F (90˚C) to avoid damage from high
temperatures during self-clean.

Other manuals for Wolf IG15/S

Related product manuals